



























































































































































































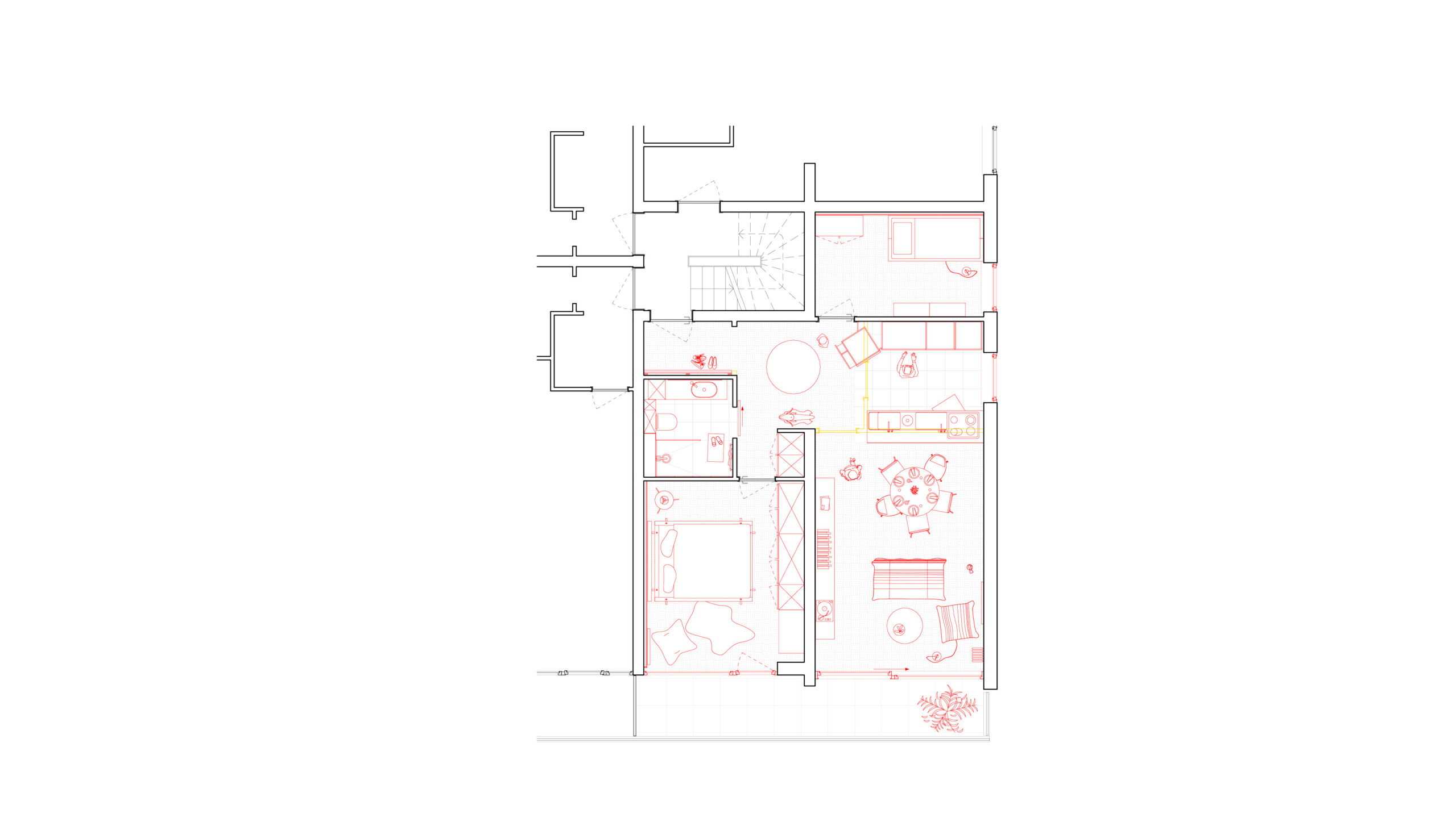
Konzeption, Umbau und Sanierung | Gebäudeumbau | 2025 – ongoing
Project Information
Type
Architecture
Size
70 m²
Design
Conversion / Renovation
Timeframe
since 2025 – present
Status
ongoing
Location
München
Commission Type
Direct commission
Client
Private
Team
Dr. Valerie Rehle, Phillip Dopfer
Images Sebastian Klawiter

















Konzeption, Umbau und Sanierung | Gebäudeumbau | 2023 – heute
Projekt Information































abk – groundworks | Grundlagen der Gestaltung und Experimentelles Entwerfen| Stuttgart seit WiSe 2025
„groundworks – Stratigraphie des Raumes“: an exhibition by the class for Foundational Design and Experimental Making
The first-semester students of Architecture, Industrial Design and Textile Design from the class “groundworks – Foundational Design and Experimental Making” present their work. At self-discovered sites on the former Stuttgart IGA grounds, the students uncovered spatial layers, made hidden connections visible and developed what they found further. Through their own readings of space and precisely placed fragments, works emerged that open up different approaches to their sites and make spatial potential tangible. The exhibition presents 33 works that offer insights into the uncovering, interpreting and continuing of each site, and invite a shift in perspective.
Since the winter semester 2025, Sebastian Klawiter has taken over the class Foundational Design and Experimental Making at the State Academy of Fine Arts Stuttgart. He continues the former Inkubator class by Fahim Mohamadi as abk – groundworks and develops its approach further. The foundational class accompanies and supports first-year students from Architecture, Product Design and Textile Design in their first steps in design. Under the title “abk – groundworks: Stratigraphy of Space”, methods of observing, perceiving, collecting, designing and testing are explored and practised, in order to make the layered dimensions of architectural and urban spaces visible, comprehensible and open to transformation.
de
„groundworks – Stratigraphie des Raumes“: ein Ausstellung der Klasse für Grundlagen der Gestaltung und Experimentelles Entwerfen
Die Studierenden des ersten Semesters Architektur, Industrial Design und Textildesign der Klasse „groundworks – Grundlagen der Gestaltung und Experimentelles Entwerfen“ präsentieren ihre Arbeiten.
An selbst entdeckten Orten auf dem ehemaligen Stuttgarter IGA-Gelände legten die Studierenden räumliche Schichten frei, machten verborgene Zusammenhänge sichtbar und entwickelten das Vorgefundene weiter. Durch eigene Lesarten des Raums und präzise gesetzte Fragmente entstanden Arbeiten, die unterschiedliche Zugänge zu ihren Orten eröffnen und räumliche Potenziale erfahrbar machen.
Die Ausstellung zeigt 33 Arbeiten, die Einblicke in das Freilegen, Interpretieren und Weiterbauen der jeweiligen Orte geben und zum Perspektivwechsel einladen.
Im Wintersemester 2025 übernimmt Sebastian Klawiter die Klasse Grundlagen der Gestaltung und Experimentelles Entwerfen an der Staatlichen Akademie der Bildenden Künste Stuttgart. Er führt die bisherige Klasse Inkubator von Fahim Mohamadi als abk – groundworks fort und entwickelt deren Ansatz inhaltlich weiter. Die Grundlagenklasse begleitet und unterstützt Studierende des ersten Studienjahres aus den Bereichen Architektur, Produkt- und Textildesign bei ihren ersten gestalterischen Schritten. Unter dem Titel abk – groundworks: Stratigraphie des Raums“ werden Methoden des Beobachtens, Wahrnehmens, Sammelns, Gestaltens und Prüfens erprobt und eingeübt, um die vielschichtigen Ebenen architektonischer und urbaner Räume sichtbar, verstehbar und transformierbar zu machen.































In summer 2025, the School of Engineering and Design at the Technical University of Munich piloted new teaching formats to highlight the social role and contributions of engineers in transformation processes. Three interdisciplinary summer schools examined transformation from different perspectives: belonging (Prof. Annette Diefenthaler), working environments (Prof. Klaus Bengler), and built structures (Prof. Mark Michaeli). The diverse results are presented at a public closing event at Pavilion 333 in Munich – featuring an exhibition of the projects, guest lectures, and discursive formats.
October 30, 2025, 16:00, Pavillon 333
Speakers: Kim Dabbs, Prof.in Annette Diefenthaler, Robert Martinez von Bülow, Dr. Sascha Wischniewski, Prof. Dr. Klaus Bengler, Nicole Fritsch, Prof. Mark Michaeli, Christine von Raven, Hanna Noller
Moderation:Anna-Maria Mayerhofer, Sebastian Klawiter , Dr. Lorenz Prasch
Organisationsteam: Sebastian Klawiter, Anna-Maria Mayerhofer, Sebastian Haß
Grafische Gestaltung: @seasonalfruit.eu
Fotographie: Eloise Vanholder
Supported by Bundesanstalt für Straßen- und Verkehrswesen (BASt)




















Raum- und Kommunikationskonzept | Akut – eine Innenstadt von Übermorgen | Landeshauptstadt Stuttgart 2024
Königstraße 1A — die wohl beste Lage der Stadt.
In einer Zeit des Wandels, in der traditionelle Einkaufsstraßen ihre Rolle in den Innenstädten neu definieren müssen, steht die Königstraße 1A als Sinnbild für Möglichkeiten und Potenziale, die gerade entstehen. Während Onlinehandel und Kaufhauspleiten Freiräume in unserer Innenstadt hinterlassen, kommt “Die Lage” ins Spiel – ein kreativer Spielraum für Innovation und Gemeinschaft, ein Hub für die Akteur:innen der Veränderung. Die Königstraße 1A ist mehr als nur eine Adresse in bester Lage – es ist ein Versuch, die leeren Schaufenster und stillen Gänge mit neuen Ideen zu füllen.
Die Immobilie selbst wird zu einem Experimentierfeld, zu einem Stadt(um)baukasten städtischer Zukunftsmodelle. Über den Zeitraum von mehreren Monaten werden unterschiedliche Nutzergruppen eingeladen, ihre Ideen für die Stadt zu entwickeln, zu diskutieren und diese direkt vor Ort zu erproben. In 1A Lage entsteht so ein dynamisches und sich ständig weiterentwickelndes Bild des urbanen Raums von Morgen.
Projekt Information
Abgeschlossen
Stuttgart
Öffentliche Ausschreibung













































Beim dreitägigen Design Sprint XL „RiesenChancen für die Stadt“ vom 6.–8. August 2025 entwickeln Studierende der TU München Ideen für die Transformation von Großstrukturen. Mit Unterstützung von „Kompliz*innen“ – erfahrene Entwerfer*innen aus der Praxis – entstehen in drei Tagen 1001 Entwürfe für elf XL-Gebäude, darunter mehrere obsolete Warenhäuser, das Collini-Center in Mannheim, das ehemalige Telekom-Areal in Frankfurt am Main und die Alte Pinakothek in München.
Es gibt morgendliche Inputs von Kristina Maria Möhring (FARLAND) und Dorothee Rummel (Bauhaus-Universität Weimar), intensive Workshops und Diskussionsrunden. Eingeladen, am Diskurs teilzunehmen, sind neben Studierenden auch alle Architekturinteressierten. Abends ist die UmbauBar des Lehrstuhls Sustainable Urbanism geöffnet. Ein Vortrag von Nanni Grau gibt Einblicke in Umbauprojekte von Hütten und Paläste. Organisiert wird der Design Sprint vom Lehrstuhl Sustainable Urbanism (Mark Michaeli) in Kooperation mit der Professur für Architektur und Konstruktion (Jeanette Kuo).
Großstrukturen wie Warenhäuser, Einkaufszentren, Büroensembles und Verwaltungsgebäude sind über die letzten Jahrzehnte vermehrt aus der Nutzung gefallen. Ihre Transformation ist aus ökologischen, baukulturellen, sozialen und wirtschaftlichen Gründen häufig sinnvoll und birgt das Potential, eine nachhaltige Quartiersentwicklung anzustoßen. Doch ihr Umbau stellt Planende – und Studierende – vor Herausforderungen, denn die gewaltigen Bauten, gleichzeitig Gebäude und Quartier, müssen sowohl auf gebäudetechnischer als auch auf städtebaulicher Ebene weitergedacht werden.
Statt lange zu grübeln, geht es beim Design Sprint XL um das schnelle Skizzieren von Szenarien – ein forschendes Vorgehen, das bei Entscheidungen in frühen Entwurfsphasen von Umbauprojekten helfen kann. Entlang einer visuellen Matrix werden Nutzungsmischungen, strukturelle Eingriffe in das Gebäudevolumen und architektonische Strategien in unterschiedliche Kombinationen und Varianten getestet. In einem abschließenden Plenum werden die entstandenen Arbeiten präsentiert und diskutiert.
Vortrag: Donnerstag, 7. August, 18 Uhr, Nanni Grau (Hütten und Paläste)
UmbauBar: Mittwoch, 6. August und Freitag, 8. August ab 18:30 Uhr; Donnerstag, 7. August ab 19 Uhr (im Anschluss an den Vortrag von Nanni Grau)
Ort: Immatrikulationshalle der TUM, Arcisstraße 21
Organisation: Lehrstuhl Sustainable Urbanism (Mark Michaeli) in Kooperation mit der Professur für Architektur und Konstruktion (Jeanette Kuo)
Team: Sebastian Klawiter, Anna-Maria Mayerhofer, Tobias Fink
Kompliz*innen: Laura Brixel, Lukas Brecheler, Tobias J. Haag, Christoph Hilger, Kristina Maria Möhring, Ina-Maria Schmidbauer, Miriam Stümpfl




















Wettbewerbsgewinn 1. Preis | partizipatives, städtebauliches Werkstattverfahren CO_Wettbewerb, 22ha | 2024
dynamisches Raumwerk zur kollektiven Gestaltung des Campus Nord
Der Campus Nord der TU Braunschweig wird sich in den nächsten Jahren öffnen. Hier entsteht ein neues Stück Stadt, das Wohnen, urbane Landschaft, soziale Gemeinschaft sowie Lehre und Forschung zusammenbringt. Mit dem ‚prinzipCOOP‘ geben wir der Stadt Braunschweig, seiner Universität und den Bürger:innen einen Leitfaden zur schrittweisen und kollektiven Entwicklung des Areals mit auf den Weg. Ganz im Sinne von Hannes Meyer sind wir überzeugt, dass “Architektur ein Gestaltungsprozess des sozialen Lebens der Gesellschaft” ist. Dem folgend sollten die Stadt und ihre Gestalt nicht allein fachlich geplant und gebaut werden, sondern im Rahmen eines kollektiven Aushandlungs- und Gestaltungsprozess wachsen. Diesem Prinzip folgen wir mit unserem Beitrag für die zukünftige Entwicklung des Nordcampus (CO_Living Campus) der TU Braunschweig.
Was bedeutet dieser Vorschlag für das Nachdenken über Architektur, Landschaft du Gebietsentwicklung? Für einen Prozess, der schon begonnen hat und uns noch viele Jahre begleiten wird? Das ‚prinzipCOOP‘ beschreibt keinen einzelnen oder fertig geplanten Entwurf, sondern ist vielmehr eine Kuration unterschiedlicher Programme, Räume und Informationen, kontinuierlich erarbeitet im Austausch mit sämtlichen beteiligten Akteur:innen und Nutzer:innen.
Das städtebauliche Motiv des zukünftigen CO_living Campus arbeitet mit vorgefunden baulichen, landschaftlichen und sozialen Strukturen und erlaubt ein schrittweises Entstehen und Wachsen des Campus im Rahmen eines präzise definierten Raumwerks, das elementare und strukturelle Elemente langfristig sicherstellt. Innerhalb dieser für den Campus gesetzten ‚Leitplanken‘ bleibt die Entwicklung dynamisch und kann dadurch auf sich ändernde Bedarfe und Nachfragen reagieren und lässt in der konkreten baulichen, programmatischen und freiräumlichen Entwicklung Spiel- und Gestaltungsräume offen. (Zwischen-)Entwicklungsstadien stellen dabei einen ebenso plausiblen wie funktionierenden Ort für vielfältige Akteur:innen und Nutzer:innen, für Neues, Bestehendes und Temporäres zur Verfügung.
Die Grundidee des dynamischen Raumwerks gliedert das Gesamtgebiet in drei komplementäre Teilräume (Co-Living Campus, Co-Produktives Land, Co-Habitation/Campus-Wald) mit jeweils eigenen Atmosphären und räumlichen Konfigurationen, die entsprechend unterschiedlich angeeignet und genutzt werden. Über ein intuitiv orientierbares Netzwerk öffentlicher Wege und Plätze verknüpft sich ein strukturreicher Nordcampus in den umgebenden Kontext Braunschweigs.
Links:
Projekt Information























Finalisten | GegenKlänge. Ein Echoraum, der keine Ruhe gibt | nicht offener Kunstwettbewerb mit vorgeschaltetem offenen Bewerbungsverfahren | 2025
Wie lässt sich aus einem Versteck eine Architektur für die Öffentlichkeit entwerfen? Und: Welchen Klang hat Widerstand?
Ausgangspunkt unseres Entwurfs »GegenKlänge« ist der Grundriss der Pfeifenkammer und das Gesamtvolumen der Orgel. Sie bilden die zwei Komponenten, die wir vom Innenraum in den Außenraum übertragen und aus denen sich unsere Architektur die Form nimmt. In der Verkopplung zwischen der Enge des Verstecks und einer sich zum Horizont und Klang hin öffnenden Architektur entsteht ein Lernort, der die Besucher:innen in seiner räumlichen Dimension sinnlich anspricht. Eine Virtual-Reality-Installation lässt den Innenraum der Orgel als Versteck des fünften Flugblattes räumlich digitalanalog nacherleben.
In der Ulmer Orgelkammer hatten einst Mitglieder der Weißen Rose Flugblätter versteckt und versandfertig gemacht.
Die sich zum Horizont hin öffnenden Architektur denkt sich Dreiklang. An die Farbpalette Otl Aichers angelehnt, zeigen ein Orgelgehäuse mit drei spielbaren Orgeln, ein Orgelmagazin und ein digitales Billboard zur Stadt. Die Orgelpfeifen sind von den Besucher:innenn zu bedienen – nur so ertönen die Ulmer Gegenklänge. Unterhalb der Orgel – und neben dem Grundriss der Orgelkammer verortet sich eine Open School mit Agora zum Austausch und Diskutieren. So entsteht ein Echoraum, der keine Ruhe gibt.
Echo als Praxis: Wie erinnern wir heute? Die Frage lautet für uns nicht: Was hättest Du getan?, sondern: Was würdest Du heute tun? Deshalb möchten wir Orgelpfeifen in Kooperation mit europäischen Jugendparlamenten und lokalen Jugendinitiativen zusammentragen – gerade aus jenen Ländern, in denen autoritäre Tendenzen wieder stärker werden. So schafft die Architektur als sichtbarer Erinnerungsort, Resonanzen zwischen Gegenwart, Geschichte und Zukunft.
Projekt Information





















Gestaltung und Umsetzung | Ausstellung | München hat Plan.| München 2025
“München hat Plan” – unter diesem Titel macht die Jahresausstellung 2025 des Referats für Stadtplanung und Bauordnung die Zukunft der Stadt greifbar. Wie soll München in 20 Jahren aussehen? Der neue Stadtentwicklungsplan gibt Antworten auf die wichtigsten Zukunftsfragen: von der Vernetzung von Grünflächen über zukunftsfähige Mobilität bis hin zur nachhaltigen Stadtentwicklung. Die Rathausgalerie wird zum atmosphärischen Cineroleum, zum Kino und zur Leinwand für die Zukunft unserer Stadt. Die Ausstellung macht den Stadtentwicklungsplan anhand konkreter Zukunftsorte erlebbar und wird zur inspirierenden Brücke zwischen Vision und Realität, zwischen Stadtgesellschaft und Verwaltung. Besucher*innen tauchen ein in eine multimediale Erfahrungswelt, die städtebauliche Planung greifbar und verständlich macht.
Projekt Information
Art
Ausstellungsarchitektur















































Impulsnutzungskonzept & Ortsanalyse | Münchner Nordosten 2024
Der Münchner Nordosten bietet als eine der letzten großen zusammenhängenden Freiflächen der Stadt die einmalige Chance, nachhaltige Stadtentwicklung neu zu denken. Innovative Zwischennutzungen machen die Potenziale des künftigen Stadtquartiers bereits heute erlebbar. Statt klassischer Masterplanung entsteht ein offener Prozess: Temporäre Interventionen, partizipative Formate und kreative Nutzungen lassen die Qualitäten des preisgekrönten städtebaulichen Entwurfs schon jetzt Realität werden. Von Beginn an steht dabei der Dialog im Mittelpunkt. Bereits in der frühen Phase des Strukturkonzepts fließen die Expertise und Erfahrungen der lokalen Akteure in die Planung ein. Diese kontinuierliche Beteiligung prägt den gesamten Entwicklungsprozess – von der Grundlagenermittlung bis zur konkreten Umsetzung. Schritt für Schritt entwickelt sich ein lebendiges Labor für nachhaltige Stadtentwicklung – gestaltet von den Menschen vor Ort und allen, die den Münchner Nordosten als Zukunftsquartier mitprägen möchten.
Projekt Information
Laura Höpfner


















Konzeption, Prozessdesign und Entwurf | Kirchentransformation | seit 2024
Umbau-, Prozess- und Gestaltung der katholische Kirchengemeinde St. Johannes zu einer Neuausrichtung, Öffnung und Weiterentwicklung des Kirchenraums parallel zum liturgischen Gebrauch. Diese Kirche befindet sich im Moment auf einer Reise. Es ist eine Reise, die (wie es gute Reisen so an sich haben) ein wenig ungewiss ist. Klar ist nur: an diesem Ort soll sich das Leben tummeln, es soll ein Ort sein, an dem jeder und jede sich wohl fühlt, unabhängig von der eigenen Konfession. Auf unserer Reise möchten wir einiges ausprobieren: vielleicht wird zwischen den hohen Wän- den der Kirche geklettert, vielleicht gibt es dienstags Kinofilme und samstags auf dem Vorplatz Käse- und Obststände. Vielleicht wird auf den Treppen zu Salsa-Musik getanzt, und auf Tischtennis- Platten Umlauf gespielt. Gewiss ist: die Reise bringt uns nicht in die Ferne, sondern nah zueinander. Vielleicht rückt dabei sogar ganz Emmendingen näher an diesen Ort?
Projekt Information



























Konzeption, Entwurf und Detailplanung | Gebäudeumbau | 2020 – heute
Haus Feuerbach ist seit den 30er Jahren ein Gästehaus am Tegernsee und schon immer wichtige Existenzgrundlage der Familie. Ein Gebäude mit vielen sichtbaren sowie unsichtbaren Geschichten seit Erbauung unangetastet. 2021 fassten die Enkel den Entschluss, dem historischen Bau mit einer grundlegenden Sanierung neues Leben einzuhauchen. Behutsam sollte eine neue zeitgemäße Gästehausnutzung in die bestehende Substanz integriert werden welche vier seperat zugängliche Wohnungen ermöglicht.
Mit einem kleinen Anbau von nur 4m2 strukturieren wir das gesamte Gebäude neu. Das zweigeschossige Gebäude soll energetisch saniert und der Keller sowie das Dachgeschoss ausgebaut werden. Durch abgraben der Geländeoberfläche und dem Anschluss auf der Hälfte der bestehenden Kellertreppe, verlegen wir den Hauptzugang, können die historische Bestandstreppe erhalten und erschließen das neu geschaffene Souterrain. Fast alle Eingriffe bleiben unsichtbar und sind doch sichtbar.
Projekt Information


































Kunst am Bau Wettbewerbsbeitrag | TAYLOR – teatro comune | Mannheim 2024
TAYLOR. Das ist für uns der Moment, wenn ungezählt viele Menschen einer Aufführung beiwohnen, ohne ein Ticket zu haben, wenn sich der Zuschauerraum in die Stadt aus- weitet – und das Theater auf einmal für alle da ist: teatro comune. Der Begriff »teatro comune« verweist auf die Co- media d’ell arte, die keine besondere Bühne für ihre Aufführungen brauchte. Sie spielte überall: auf freien Plätzen, leeren Straße, in einfachen Räumen – und die Leu- ten versammelten sich für einen kurzen Moment. Heute ließe sich mit Blick auf das Alltägliche im öffentlichen Raum sagen: »Theater ist nicht nur, wenn abends auf der Bühne ein Stück gespielt wird, Theater ist immer« (Mely Kiyak).
TAYLOR transformiert den Goetheplatz in einen Piazza della Comune.
Zugleich setzt sich unser Entwurf in unmittelbare Relation zur Theaterarchitektur. Mit der Generalsanierung öffnet sich erstmals wieder das obere Schauspielfoyer an der Stirn- seite des Gebäudes als »Fenster zur Stadt«. Unsere performative Installation versteht sich als Antwort auf diesen Blick: auf Augenhöhe mit dem Theater blickt die Stadt zurück. TAYLOR öffnet den Platz, spannt den städtischen Zwischenraum zu einem Foyer Publico auf und lässt die Stadt ins Theater hineinschauen. Auf diese Weise stärken wir die konzeptionelle Durchlässigkeit des Theaters und lassen mit Schiller probehalber »die Schranken des Unterschieds einstürzen«. TAYLOR selbst lädt ein für verschiedene Begegnungen und Aufenthaltsmöglichkeiten, zeigt sich durchlässig für den Lärm und die Luft der Stadt und wendet sich mit ihrer Rückseite den großen alten Bäumen zu. Taylor ist so zugleich eine Einladung in die Baumwipfel aufzusteigen, sich von ihrer Kühle umfassen zu lassen und einen neuen Blick auf die Stadt zu entdecken.
Unser Entwurf lässt sich von seinem Kontext und dem Mosaikfries von Hans Leistikow inspirieren – auf dem eingerahmt von einem silbernen Vorhang Figuren der Comedia d’ell arte zu sehen sind. Die Installation erinnert in ihrer Struktur an die einfachen hölzernen Wanderbühnen der Comedia d’ell arte, die eine simple bühnenhafte Infra- struktur und Kapazitäten bereitstellen und zu immer neuen Aneignungen einladen. TAYLOR aktiviert den Goetheplatz als vielfältig nutzbaren Raum, lädt mit ihren einfachen, stufenförmigen Sitzgelegenheiten zur informellen Nutzung ein und bildet eine Kulisse für das Theater des täglichen Lebens – auf einer sich neu aufspannenden Piazza della Comune. Zugleich eröffnet TAYLOR dem Theater unter- schiedliche Handlungsmöglichkeiten, so wäre etwa an die Möglichkeit zu denken, Aufführungen, Konzerte oder klei- nere Ausschnitte via Sound und/oder mobiler Leinwand von drinnen nach draußen zu übertragen, an eine Inszeni- erung oder an ein Konzert im oberen Foyer, die sich von TAYLOR aus beobachten lassen, an Open-Air-Aufführungen auf dem Platz oder aber auch an kleinere (Diskurs-)Formate rund um TAYLOR selbst.
TAYLOR versteht sich als performative Installation, was nicht zuletzt bedeutet, dass die Aktivierung des Platzes und der Installation wesentlicher Bestandteil des Projektes ist. In diesem Sinne soll ein Programm im Sinne eines Reallabors aus künstlerischen Arbeiten, Workshops und Diskussionen unter dem Titel REHEARSING FOR THE NOT- YET verschiedene Zukunftsszenarien der Stadt erproben und gesellschaftlich verhandeln. Perspektivisch könnte es – etwa mit Blick auf Institutionen wie das Theater Basel oder das Centquadre-Paris – darum gehen, zusammen mit dem Theater TAYLOR als neue Sparte ernst zu nehmen und gemeinschaftlich an einer Vision eines klimafreundlichen und hierarchiefreieren Raumes zu arbeiten, in dem sich (Nicht-)Publikum wie Theater selbst vermitteln und begegnen können.
Projekt Information





















Wettbewerbsgewinn 1. Preis | offener Ideenwettbewerb Perspektive Bureau des arts plastiques des Institut français | 2024
Die Stuttgarter Cuisine Commune gründet sich buchstäblich mit dem, was vom Himmel fällt, – in mehrfacher Hinsicht:
Erstens ist da Harry‘s Bude, eine temporäre Foodsharing-Station, die Menschen mit Lebensmittel versorgt. Dieses Versorgungssystem zu organisieren, ist harte Arbeit, die von Vielen gestemmt wird. Doch für einen kurzen Moment möchten wir sagen: Harry und seine Leute versorgen die Menschen mit Lebensmitteln, die vom Himmel fallen.
Zweitens ist da das poröse Gestein, das als Bruchstück von dem Gebäude gebrochen und in die Tiefe gestürzt ist, vor dem sich Harrys prekäre Architektur errichtet hat: die Kirche St. Maria. All diese Steine haben sich der Schwerkraft ergeben und ihren Zusammenhalt verloren, sind gebrochen, zerbrochen, gefallen, gestürzt –
Drittens sind da die einzigartigen Dachziegel, die beinahe nirgends sonst mehr als von Susanne Rall im Stuttgarter Süden von Hand gefertigt und gebrannt werden – und in der französischen Sprache den gleichen Namen tragen wie ein Laib Käse: La Brique.
Das ist Ausgangspunkt unserer Idee der Stuttgarter Cuisine Commune; diese drei Entwurfskomponenten: La Caillou + Le Ciel + La Brique.
Das Wichtigste: für Harry’s Bude eine Architektur zu entwerfen, die sich so in diesen Ort einschreibt, in die Mauern eingräbt, sich mit den Steinen verbindet, dass sie durch nichts als Ganzes in Frage gestellt werden könnte. Und zugleich die Möglichkeit schafft, nicht nur Lebensmittel zu verteilen, sondern genug Platz, Stau-,Kühl- und Handlungsraum, um eine Cuisine Commune zu betreiben, einmal in der Woche gemeinsam zu kochen. Es ist der Traum eines großzügigen, offenen und pragmatischen Ortes.
Dabei rufen uns die Steine Walter Benjamins Denkbild der Porosität ins Gedächtnis, das wir auf die Situation von Harrys temporärer Bude und der Kirche als Institution übertragen wollen. Der Entwurf „Harry’s Bude als Cuisine Commune – Cuisine Commune als Architektur“ möchte das Kirchengebäude durchlässig machen, zugänglich, offen und empfänglich für seine direkte Umgebung: Harry’s Bude und den Österreichischen Platz. Dabei geht es darum, in feste Strukturen Momente der Porosität einzutragen und Architektur als eingreifende Praxis zu denken: Eine Geste der Öffnung, des Teilens, der Gleichzeitigkeit und der Versammlung. Gerade weil sich in unserem Entwurf etwas manifestiert, bleibt entscheidend, nicht aus den Augen zu verlieren, was Bude wie Benjamins Begriff auszeichnet: „man meidet das Geprägte, keine Situation erscheint so wie sie ist, für immer gedacht, keine Gestalt behauptet ihr ‘so und nicht anders’. Denn fertiggemacht und abgeschlossen wird nichts.“
Die Stuttgarter Cuisine Commune schafft Durchlässigkeiten für verschiedene Handlungsräume, denkt die Küche als offenen Raum und Werkstatt, in dem ko-produktive Prozesse einen lebendigen Ort entstehen lassen. Das bedeutet auf Seiten der Praxis – also dort wo mit Stefano Harney und Fred Moten „die Planer:innen immer noch Teil des Plans sind“ – „in einem gemeinsamen Experiment die Mittel zu erfinden, das in jeder Küche […], in jedem Korridor, auf jeder Parkbank […] – das Kommende der Lebensformen […] lanciert wird“. Das ist der Traum: an diesem Ort ein gemeinschaftliches Handeln – als Küche – zu erproben.
Links:
Bureau des arts plastiques des Institut français Deutschland
Projekt Information
Art
Architektur
Entwurf
1. Preis Wettbewerb
Zeitraum
2024
Status
abgeschlossen
Ort
Stuttgart
Type
offener Ideenwettbewerb
Auftraggeberin
selbst initiiert
Grafikkonzept
mit Mark Julien Hahn
Mitarbeit
Phillip Dopfer
Partnerin
mit Fanti Baum
Dachziegel mit
Jura Klinkerwerk, Echterdingen

















Urban Design Studio | Lage, Lage, Lage| München 2024
Der tiefgreifende Wandel des stationären Einzelhandels stellt europäische Innenstädte vor neue Herausforderungen. Nach Corona, Signa-Pleite und der wachsenden Bedeutung des Onlinehandels braucht es neue Antworten für obsolete Strukturen in unseren Zentren. Während große Warenhäuser schließen und Immobilienkonzerne aufgrund hoher Renditeerwartungen innovative Nutzungen blockieren, sind flexible Konzepte gefragt, die Handel, Kultur, Bildung, Wohnen und urbane Produktion intelligent verknüpfen. Die Transformation dieser Großstrukturen bietet die Chance, Innenstädte neu zu denken und durch kreative Umbauprozesse zukunftsfähige, gemeinwohlorientierte Stadträume zu entwickeln – eine Aufgabe, der sich das Urban Design Studio “Lage, Lage, Lage” am Lehrstuhl Sustainable Urbanism der TU München in enger Zusammenarbeit mit der Stadt Bremen und Studierenden gewidmet hat.
Semesterdokumentation “Lage, Lage, Lage – zur Zukunft der Innenstädte“
Auszeichnung Campus Baunetz: Stadt – Raum – Hybrid (Stefan Gross, Florian Meissner, Kilian Reuser)
Projekt Information
















Möbelentwurf | Medienmöbel | TU München
Medienmöbel aus gebeizten Seekieferplatten (25mm), verleimt, keinem banalen Granit Bordstein als Gegengewicht, dafür weiter mit beweglich Industrierollen.
Projekt Information

















Viele innerstädtische Kirchen sind zu groß geworden für ihre Gemeinden, und es stellt sich immer häufiger die Frage nach möglichen Zukünften dieser oft zentral gelegenen Räume. Auch die Auferstehungskirche im Münchner Westend befindet sich mitten in einem solchen Transformationsprozess. Die Gemeinderäume sollen erneuert und die Kirche selbst – parallel zum liturgischen Gebrauch – für eine vielfältige und gemeinwohlorientierte Nutzung zum Quartier hin geöffnet und umgebaut werden.
Solche Umbauprozesse brauchen Zeit – Zeit, die aber nicht nur abzuwarten ist, sondern im Gegenteil als Prozess des Übergangs und des Provisoriums eigene Chancen der Kreativität und der Erprobung eröffnet. Die Kunst der Improvisation, die hier entwickelt werden kann, kann – wenn es gut geht – in den neu entstehenden Raum mitgenommen und produktiv genutzt werden.
Es geht zugleich um Umbaukultur: Orte, die in ihrer bisherigen Nutzung obsolet geworden sind – seien es Kaufhäuser, große Firmenzentralen oder eben auch Kirchen – sollen nicht mehr abgerissen, sondern umgebaut werden. Über das Umbauen ist aber nicht nur auf Gebäudeebene nachzudenken. Wir müssen zugleich unsere Vorstellung von Architektur als soziale Praxis neu hinterfragen.
Als eine Art gedankliche “Bauhütte” möchten wir den Umgestaltungsprozess der Auferstehungskirche mit Vorträgen und Dialogen begleiten und Spielräume ausloten, die sich unterwegs ergeben. Welchen gesellschaftlichen Mehrwert können kommende Kirchentransformationen für die sie umgebenden Quartiere ermöglichen, und welche zusätzlichen Nutzungen können wertvolle Dienste im Sinne des Allgemeinwohls leisten?
Süddeutsche Zeitung Artikel: hier
18:30 – 21:00 Uhr, Auferstehungskirche München Westend, Gollierstraße 55
Dienstag, 4. Juni 2024
Die Improvisation von Raum
Lecture Performance mit Vibraphon
Prof. Dr. Christopher Dell, Musiker, Komponist und Urban Design Theoretiker, Direktor des Instituts für Improvisationstechnologie (ifit), Berlin
& Sebastian Klawiter, Architekt ByAK, Innenarchitekt ByAK, Schreinermeister, Studio Sebastian Klawiter und Stadtlücken e.V., Wissenschaftlicher Mitarbeiter TUM-Sustainable Urbanism
Dienstag, 25. Juni 2024
Obsolete Stadt – Räume für Transformation
Ina Laux, Dipl.-Ing. Univ., Architektin BDA, Stadtplanerin DASL, Geschäftsführende Gesellschafterin Laux Architekten GmbH, Juryvorsitzende des Wettbewerbs „Fritz District“ Neuperlach
Sabine Tastel, Dipl.-Ing. (arch), Stadtplanerin, Wissenschaftliche Mitarbeiterin und Lehrkraft für besondere Aufgaben, Fachgebiet Städtebau, Universität Kassel
Eine Kooperation von
-
- Stiftung Weiter-Denken. Protestantische Kultur und Stadtgesellschaft
- Lehrstuhl für nachhaltige Entwicklung von Stadt und Land, TUM
- Auferstehungskirche München Westend
- DG Kunstraum Diskurs Gegenwart
- Kunstpastoral der Erzdiözese München und Freising
- Bau- und Kunstreferat der Evangelisch-Lutherischen Kirche in Bayern
Mit freundlicher Unterstützung des Kulturreferats der Landeshauptstadt München.
Grafik MarkJulienHahn
Druck: Druckeria
-
- Kontakt und Information: Jutta Höcht-Stöhr, Stiftung Weiter-Denken,


























Installations- und Kommunikationskonzept | Digitalanaloger Erinnerungsort im öffentlichen Raum | Stuttgart August 2024
War, bin, werde sein: Revisiting the 1907 International Socialist Congress in Stuttgart.
Research work (1907 International Socialist Congress in Stuttgart) by Ana María Gomez Lopez, created as part of her fellowship at the Akademie Schloss Solitude.
Projekt Information
























Wettbewerbsgewinn | Orte & Räume jenseits bekannter Strukturen —unlearning eugenics1 —hin zur inklusiven Stadt | Erlangen 2023
Die Vorstellungen der Eugenik reichen – ähnlich wie die des Rassismus – bis in unsere Gegenwart hinein. Es wäre fatal zu glauben, sie seien mit 1945 einfach verschwunden. Dazu sind sie viel zu sehr in unsere Gesellschaft eingeschrieben. Jahrzehntelang wurden die Namen der Opfer der Euthanasie verschwiegen, waren sie als Gruppe der Verfolgten des NS-Staates nicht anerkannt. Auf der Seite der Mehrheitsgesellschaft ist das Wissen, dass sich während der NS-Zeit hinter den Mauern der Pflege- und Heilanstalten ein staatliches Mordprogramm mit 300.000 Opfern ereignete, selten mehr als in unscharfen Umrissen vorhanden. Die Mauern und die stadträumliche Verortung der Anstalten genauso wie unsere Sprache verbergen mitunter bis heute, dass „die Behandlung“, – man könnte auch sagen: Heil- und Pflege – „nichts anderes hieß als Mord.“2
Doch was bedeutet das für das Nachdenken über Architektur? Für eine Idee, die zugleich einen Erinnerungs- und Zukunftsort entwirft? – Für uns heißt das, eine Idee zu imaginieren, die den Mut hat, vorgegebene Denk- und Handlungsweisen in Frage zu stellen. Wir wollen statt einfach nur zu bauen, die Stadt und das Gelände der Heil- und Pflegeanstalt Erlangen aktivieren. Für uns ist Gedenken kein einzelner oder fertiger Entwurf, mehr eine Aneinanderreihung von unterschiedlichen Programmen, Räumen und Informationen. Deshalb schlagen wir mit unserem Konzept ein unlearning eugenics vor, das sich als Prozess und im Austausch mit der Stadtgesellschaft denkt.
1 Vgl. Dagmar Herzog: Unlearning Eugenics. Wisconsin: University of Wisconsin Press, 2020.
2 Zitiert nach Götz Aly
Projekt Information
gewonnen
Ort
Erlangen Heil- und Pflegeanstalt (Hupfla)
Type
Wettbewerbsgewinn Offener zweiphasiger Städtebaulicher Ideenwettbewerb
Felix Valentin Dingeldein & Lavinia Krick
Partnerin




































Wettbewerbsgewinn | Künstlerisches Labor im öffentlichen Raum | Stuttgart Juli 2023
Was geben uns die Steine in ihrem Gebrochen-Sein zu denken auf? Welche Erinnerungen sind dem Material eingeschrieben? Lässt sich die Verletzbarkeit in den Steinen suchen? Und welche Art von Sorgearbeit wäre uns von ihnen aufgetragen? Was heißt es mit den Bruchstücken, dem Herabgefallenen und dem Übriggebliebenen der Stadt zu denken? – zu arbeiten?
Das Gebrochene der Stadt unternimmt über die Dauer von zehn Tagen eine performative Untersuchung des poetischen Potentials des Steinigen, und baut eine radikal uneinheitliche Skulptur – aus Spolien, Steinen, gebrauchten Materialien und was die Stadt sonst noch bereithält. Auf diese Weise entsteht eine provisorische Konstellation, die sich zu nichts Ganzen fügt, aber vielleicht gerade deshalb sich als Stuttgarter Formation zu erkennen gibt; – unentdeckt.
19.-23. Juli: offene Baustelle;
26.-30. Juli: Arbeit am Stein. Konstellationen mit Spolien, Steinen, Himmel.
Provisorische Skulpturen und Zusammenkünfte.
Ein Projekt von Sebastian Klawiter & Fanti Baum
Grafik: Mark Hahn
Gäste: Sciarra Valentina, Rehle Valerie
Projekt Information
abgeschlossen
Ort
Ruppert-Mayer-Platz
Type
Wettbewerbsgewinn Kunst im öffentlichen Raum Stuttgart
Peter Sorg
Peter Sorg
Partnerin










































Machbarkeitsstudie | Riegerhofstraße | München 2023
Die Studie, lotet verschiedene Szenarien und Möglichkeiten vor dem eigentlichen Planungsverfahren aus, wie das Dachgeschoss des bestehenden Mehrfamilienhauses in der Riegerhofstraße, München gestaltet und in Zukunft sinnvoll genutzt werden kann. Die Ergebnisse der Studie sollen die Bauherrenschaft in ihrer technischen, wirtschaftlichen und organisatorischen Machbarkeit unterstützen und als Entscheidungsgrundlage für weitere Planungen dienen. Dabei gliedert sich die Machbarkeitsstudie in vier Betrachtungsräume
Projekt Information






















Konzeption, Kuration und Entwurf | Ausstellung In aller Öffentlichkeit | Rathausgallerie München Januar 2023
Die Jahresausstellung 2023 für das Referats für Stadtplanung und Bauordnung behandelt Themen rund um den öffentlichen Raum und greift diesen als Spiegelbild unserer Gesellschaft unter dem Titel “In aller Öffentlichkeit” auf. Ziel war es, Münchens öffentliche Stadträume für die Stadtgesellschaft sichtbar, zugänglich und vor allem erlebbar zu machen. Denn Stadt ist für uns ein konstanter Dialog zwischen den unterschiedlichen Nutzer:innen von Raum. Diese prägen, ob sie wollen oder nicht, bewusst wie unbewusst Räume. Eine reflektierende 15 Meter lange Sitzskulptur, um den Brunnen der Rathausgalerie, ist Sinnbild dieses Dialogs. Die konstante Transformation dieser flexiblen Skulptur symbolisiert, welche unterschiedlichen Zustände dieser Dialog annimmt und verweist auf die vielfältigen Nutzungsansprüche der Besucher:innen, die zum Teil in starkem Widerspruch zueinander stehen. Fragen wie: Was genau ist der öffentliche Raum?”, “Wer entscheidet darüber, wie wir ihn nutzen und einrichten?”, “Was macht den spezifischen Charakter Münchens aus?” oder “Wie können wir seine Qualitäten erkennen, bewahren und weiterentwickeln?” konnten sich die Besucher:innen nicht nur durch die einzelnen Themensteller der Ausstellung beantworten, sondern auch durch Diskussionsveranstaltungen, Spaziergänge, Führungen und eine öffentliche Bibliothek im Atrium der Rathausgalerie. Umgeben von eröffnenden Fragen und den Kernthemen der Ausstellung auf raumhohen Billboards sowie einem 16 Meter langen Alltagspanorama wurde der Atriumhof zum Ausgangspunkt für eine ganz persönliche Entdeckungsreise der Besucher:innen. Der weitere Aufbau der Ausstellung folgte bewusst keiner Hierarchie, sondern lud zum Derivé, zum Umherschweifen und Entdecken ein. So entstand ein Netzwerk von Erfahrungen und Erlebnissen, ein ganz persönliches Bild von Münchens öffentlichen Räumen. Die Ausstellung vermochte ein Bewusstsein für den alltäglichen Platz vor der eigenen Haustüre zu entwickeln und die ganz persönliche Stadterfahrung zu schärfen. Eine Ausstellung als kreative Vermittler:in zwischen Realität und Vision, zwischen alltäglicher Stadtnutzung und planender Verwaltung.
Interview Magazin Standpunkte, münchnerforum– Ausstellung „In aller Öffentlichkeit“
Projekt Information














































Wettbewerbsgewinn| Kommentar im öffentlichen Raum | München August 2022
program no program 5.9.72 – Heute Kein Programm , ist ein künstlerisches Kommentar – eine Installation im öffentlichen Raum. Der Tag markiert eine radikale Unterbrechung. Das Attentat auf das Team der israelischen Mannschaft stellt eine jähe Zäsur der Olympischen Spiele dar. Im Moment des kaum zu fassenden Ereignisses machten die Künstler Peter Mell, Hans Poppel und Uwe Streifeneder einen Siebdruck, der das letzte Zeichen des erstmals stattfindenden Kulturprogramms sein sollte – heute kein programm – 5.9.72
Im Zentrum des Projekts von Fanti Baum & Sebastian Klawiter steht jener Moment der angehaltenen Zeit. In großen leuchtenden Lettern setzen sie den Schriftzug auf das Dach der Tribüne der Kanu- und Ruderregattastrecke und wollen so der radikalen Unterbrechung Platz einräumen. Denn der sich selbst aussetzende Satz verweist für Sie auf eine Leeerstelle und offene Wunde, und vermag vielleicht die Erinnerung wach –, das Denken in der Schwebe zu halten, über ein Ereignis, das die Welt berührt hat. Als ausgesetztes Monument – (monere: erinnern, auffordern, warnen, verweisen auf) – spricht es von einem der fast vergessenen Olympiaorte als Kunst genauso zur Spektakelmaschine des Sports wie es die Vorbeikommende dazu einlädt, für einen langanhaltenden, ausgedehnten Moment in Gedanken bei Ereignissen und Opfern des Attentats von 1972 zu verweilen.
Projekt Information
abgeschlossen
Ort
Olympia-Regattastrecke München
Type
Wettbewerbsgewinn Startsignale 50 Jahre Olympische Spiele 1972 München
Partnerin




















Konzeption,Entwurf und Herausgeberschaft| Ausstellung, Symposium & Magazin | München November 2022
Die Ausstellung und das Magazin Zwischenstadt, Zwischenstand setzt sich 25 Jahre nach dem Erscheinen des Buches von Thomas Sieverts erneut mit den komplexen Fragestellungen der Zwischenstadt auseinander. Bewusst richten wir den Blick weg von den großstädtischen urbanen Zentren hin zu Orten an der Peripherie, wo Autohäuser, Kiesgruben, Reithöfe, Baumärkte, Caravanstellplätze, Autobahnzubringer und Einfamilienhaussiedlungen direkt an landwirtschaftliche Flächen angrenzen, wo Esel an Schallschutzwänden weiden und wir nicht genau wissen, wo Stadt anfängt und wo Landschaft aufhört.
Diesen Zwischenräumen haben sich in einer universitätsübergreifenden Forschungs- und Reflexionsgruppe, bestehend aus Lehrstühlen der Bauhaus-Universität Weimar, der Universität Luxemburg, dem Karlsruher Institut für Technologie, der TU Wien und der TU München, über zwei Semester lang aus verschiedenen Positionen und Blickwinkeln genähert. Den erarbeiteten Zwischenstand in Form von Essays, Gastbeiträgen und Studierendenarbeiten stellen die verschiedenen Lehrstühle hier zur Diskussion.
Download hier
Ergebnisse hier
Herausgeberschaft
Sustainable Urbanism, Lehrstuhl für nachhaltige Entwicklung von Stadt und Land, Mark Michaeli, Sebastian Klawiter, Julia Micklewright
Technische Universität München
Konzeption & Redaktion, Magazin Ausstellung & Symposium
Sebastian Klawiter & Julia Micklewright
Philipp Dopfer ( Unterstützung: Mark Julien Hahn )




























Konzeption und Entwurf | Urban Design, Intervention, Ausstellung | Graz
Wo fängt Stadtrand an? Wann hört Ortschaft auf? Und wie spielen eigentlich Kinder in diesen Zwischenräumen? Suburban Super toy ist ein Projekt für Kinder in der Stadtagglomeration Graz. Es ist ein Spiel- und Werkzeug, ein ganzes Magazin voll von benutzbaren Gegenständen, die das Wahrnehmungsvermögen der Kinder schärfen, die Neugier zur räumlichen Aneignung wecken und ein reflektiertes Denken über die gebaute und umgebaute Umwelt förderen. Gemeinsam machetn wir uns die urbanen Nebelzone spielerisch und gestaltend zu eigen und imaginieren so unsere eigenes Stückchen Stadt. Initiiert & Entstanden im Rahmen der Residence “Werkstatt für Stadtstücke” im Club Hybrid, Graz.
Ein Workshop für und mit Kindern zwischen 8 und 12 Jahren im Rahmen des Projekts suburban super toy am 14. / 15. / 16. Juli 2022 sowie ein Filmscreening mit anschließender Diskussionsrunde.
Projekt Information
Art
Stadtplanung, Ausstellung, Installation
Zeitraum
Juli 2022
Status
laufend
Ort
Graz
Type
Residence research in practise
Förder:innen
Club Hybrid
Partnerin
Muster von Eva Schlechte






















Konzeption und Entwurf | Stadtforschung | Intervention | Ausstellung |Stuttgart
Initiiert & Entstanden im Rahmen des Stipendiums an der Akademie Schloss Solitude & gefördert und der Landeshauptstadt Stuttgart, Kunst im öffentlichen Raum
Im Rahmen dieses Projektes ist auch das Interview mit Norbert Radermacher entstanden.
Projekt Information
laufend
Ort
Stuttgart
Type
selbst initiiert
Partnerin
Team: Jim Benjamin Wolff, Carolin Lahode, Sara Sutter (Grabung)
MatterOf & Mark Julien Hahn (Grafik Design)
Martin Mannweiler (Film)
Bildquellen: Jim Benjamin Wolff, Sebastian Klawiter
Ausstellungsbild Summer Festival »Hidden Traces«,Akademie Schloss Solitude, 2022. Photo: Frank Kleinbach)
Nikolaus Koliusis (Orginalbilder)
Musikperformance: Mark Lorenz Kysela







































Konzeption und Entwurf | Dialogmöbel | seit 2021
Die Möblierung von Kirchen ist ein fortschreitender Entwicklungsprozess vom Mittelalter bis hin in unsere Gegenwart. Umbauen, Anpassen, Wiederverwenden – diese Praktiken sind so alt wie der Kirchenbau selbst. Als Provisorien auf Zeit zeichnen die neuen Elemente diese Entwicklung weiter und unterstützen so den derzeitgen Transformationsprozess der Kirchengemeinde St. Maria, indem sie Dialoge anregen, Erkenntnisse dokumentieren, Wissen teilen und Dinge ermöglichen.
Was bewegt die Menschen in ihrem Stadtteil? Welche Erwartungen stellen Sie an die Kirche? Welche neuen Aufgaben können an einen sakralen Raum gestellt werden? Und was braucht es um Dialoge anzustoßen und Antworten auf diese und andere Fragen zu finden? Das Dialogmöbel unterstützt die Kirchengemeinde auf der Suche nach Antworten, indem es Menschen und Nutzer*innen im Innen-, Außen- und Zwischenraum von St. Maria im Alltagsgeschehen begenet und Dialoge fördert. Dabei versteht sich das Dialogmöbel als aktive Vermittler*in zwischen Bürger*innen, Theolog*innen und Stadtraum und setzt Gegensätze in Verbindung: alt– neu, Innen – Außen, Kirche – Stadtraum, sakral – profan, starr – flexibel, digital – analog, temporär – legendär.
Projekt Information
abgeschlossen
Ort
Stuttgart
Type
Beauftragung
Auftraggeberin
Kirchengemeinde St. Maria Stuttgart, Katholisches Stadtdekanat Stuttgart
Partner
Fotos: 1-5: Romina Vetter
Fotos 15: Collage, Der heilige Hieronymus im Gehäuse, Antonello da Messina, 15. Jh






























Lehrauftrag | Modelle bauen! | Akademie der Bildenden Künste München
Im Rahmen des Moduls »Modellebauen« an der Akademie der Bildenden Künste München machten wir uns im Sommersemester 2021 gemeinsam, auf die Suche nach neuen und alten Darstellungsweisen sowie praktischen Techniken im Modellbau. Wie entsteht ein gutes Modell? Was ist eine räumliche Skizze? Was möchte ich darstellen? Und wer ist eigentlich Charlotte Perriand?
Mit diesen Fragen will das Modul »Modellbau« zum nachdenken und reflektieren der eigenen Entwurfsarbeit anregen, eingebrannte Sehgewohnheiten aufbrechen und die Möglichkeit bieten über den eigenen Tellerrand der Disziplin zu blicken. Dabei arbeiteten wir an der Schnittstelle zwischen Innenarchitektur, Design, Handwerk, Architektur und Städtebau in unterschiedlichen Maßstabsebenen und haben so neue Darstellungsweisen für die eigene Entwurfsarbeit erkundet. Dabei waren wir ganz bei Otl Aichers Aussage »vom denken zum machen übergehen und am machen neu denken lernen.«
















Sustainable Urbanism Eins | Vorlesungsreihe | Vertiefung | |Radiosendung | München
was macht in zwischen stadt? & was macht in zukunft stadt? Dieses Semester möchten wir bewusst den Blick weg von den großstädtischen urbanen Zentren hin zu Orten an der Peripherie len- ken. Wo Autohäuser, Kiesgruben, Reithöfe, Bau- märkte, Caravanabstellplätze, Autobahnzubringer und Einfamilienhaussiedlungen direkt an landwirt- schaftliche Flächen angrenzen, wo Esel an Schall- schutzwänden weiden und wir nicht genau wissen wo Stadt eigentlich anfängt und wo Ortschaft aufhört. Diesem Unbehagen des Stadtrandes möchten wir uns aus unterschiedlichen Positionen und Blickwin- keln nähern und in der Vorlesungsreihe, Sustainable Urbanism Eins, gemeinsam mit Expert*innen aus unterschiedlichen Blickwinkeln diskutieren. Das Vertiefungsseminar geht noch einen Erkundungsschritt weiter und berichtet LIVE mit einem Radioprogramm über Ort und Welt, Raum und Zeit, Stadt und Land über selbst erlebte Erfahrungen, Positionen und Veränderungen aus der Zwischenstadt.
Die Seminarreihe versteht sich als offener Denk- und Diskussionsraum und ist darüber hinaus in eine universitätsübergreifende Forschungs- und Reflexionsgruppe eingebunden, bestehend aus unterschiedlichen deutschsprachigen Universitä- ten mit dem Ziel, weiter über die Zukunft dieser Zwischenräume nachzudenken.
Gif: Haus-Rucker-Co, Nürnberger Finger, 1971
Konzeption und Organisation: Sebastian Klawiter
Projekt Information











Entwurf, Detailplanung und Umsetzung | Küchenumbau | 2021
Umbau und Sanierung einer Küche.
Projekt Information






Konzeptentwicklung | Kooperativer Stadtraum | Österreichischer Platz Stuttgart
Wie geht es weiter am Österreichischen Platz? Die Vision der Planungsgruppe Österreichischer Platz für die Zukunft des Österreichischen Platzes ist eine langfristige Entwicklung des Ortes zum kooperativen Stadtraum für Alle. Basierend auf einer gemeinnützigen Trägerschaft mit Freiraum für Bandproberäume, Foodsharing, Ateliers, Werkstätten, Fahrradrepariercafé, Sozialstation, urbanen Bewegungsflächen wie einer öffentlichen Boulderwand, Tischtennisplatten und vieles mehr. Der Österreichische Platz wird vom Unort zu einem Ort der Begegnung, der Kreativität und der Innovation. Denn nur an Orten, an denen mit überholten Routinen gebrochen wird, kann Raum für Neues entstehen. Der Platz soll nicht nur Nutzungen und Menschen, sondern auch die Stadtteile verbinden. Mit einer Freitreppe inkl. Rampe über die B14 soll die jetzige Sackgasse zum verbindenden Element zwischen den drei Quartieren Stuttgart Mitte, Stuttgart Süd und dem Heusteigviertel werden. Die Treppe, die gleichzeitig als Tribüne funktionieren kann, gibt dem Platz seine Bestimmung zurück.
Was braucht eigentlich ein kooperativer Stadtraum? Viele Beteiligte fanden es braucht unbedingt mehr Grün! Für ein angenehmes Mikroklima genauso wie für Flora und Fauna… Das finden wir natürlich auch. Also haben wir unsere Vision für den kooperativen Stadtraum Österreichischer Platz um eine neue grüne Variante erweitert! Der Gemeinderat Stuttgart hatte die Möglichkeit, diese Vision Wirklichkeit werden zu lassen und Mittel für den Doppelhaushalt 20/21 beschlossen.
Projekt Information
















Vortrag | RADAR ist eine Vortragsreihe zum Thema Kooperation – organisiert von der Klasse von Prof. Uli Cluss.
Die Idee einer Kooperation scheint zunächst simpel: wir arbeiten zusammen. Aber wo und wie findet Kooperation noch statt? Warum ist Kooperation wichtig? Was macht eine Kooperation produktiv? Wann ist Kooperation kontraproduktiv? Wo fehlt Kooperation? Wo scheitert Kooperation? Wie hat sich Kooperation entwickelt, und wie wird sie sich in Zukunft weiterentwickeln?
Auf diese Fragen stießen wir als Kommunikationsdesign-Klasse letztes Semester, als wir uns mit diesem Thema in unserer Praxis beschäftigten mit dem Ziel im Herbst 2021 eine Ausstellung zu konzipieren und zu gestalten.Um zu einem breiteren Verständnis des Konzepts der Kooperation zu kommen und um auf ein fundierteres Wissen zurückgreifen zu können, wollen wir nun dem Begriff gerecht werden und außerhalb unserer Klasse kooperieren. Auf unserem Radar befinden sich Expert*innen aus verschiedenen Bereichen, um das Thema aus unterschiedlichsten Blickwinkeln zu beleuchten und um diese in einer öffentlichen Vortragsreihe zu teilen.
Jeden Dienstag, 17 Uhr Zugang via Zoom: https://kck.link/radar Datenschutzrichtlinie Teilnahme Zoom-Sitzung
Timetable:
Linguistik_Daniel Gutzmann 11.05.
Evolution_Lena Reitschuster 18.05.
Tanz_Edan Gorlicki 25.05.
Soziologie_Caroline Ruiner 01.06.
Politik_Brand New Bundestag 08.06.
Architektur_Urban Lab/Stadtlücken 14.06.Abb.: Animation (Gestaltung: Carl Altmann, Sophie Kraft, Sonja Schwarz)


Konzeption und Entwurf | Wohnungssanierung | 2021
Entwurf und Konzeption für die Sanierung einer berliner Wohnung für einen privaten Bauherren.
Projekt Information






Möbelentwurf | Alltagsgartenmöbel | Stuttgart
Entwurf und Umsetzung eines Gartenmöbel aus Lärche und chromatierten Metallelementen. Alle Teile der Konstruktion sind gesteckt, verschraubt und somit reversibel und in ihre Materialkreisläufe zurückzuführen.
Fotos 1,2,3,4,5,7 Barnabás Neogrády-Kiss












Prozessbegleitung | ST Maria als … Möglichkeit. | 2017 – 2021
Umbau-, Prozess- und Gestaltungsbegleitung der katholische Kirchengemeinde St. Maria in ihrem nun fünf jährigem Prozess zu einer Neuausrichtung, Öffnung und Weiterentwicklung des Kirchenraums parallel zum liturgischen Gebrauch in unterschiedlichen Konstellationen, Formaten und Projekten.
Mit der Frage: “Wir haben eine Kirche. Haben Sie eine Idee?” initiiert der Verein @stadtluecken 2017 in enger Zusammenarbeit mit der Kirchengemeinde St Maria im Stuttgarter Süden eine 2-wöchige Aktionswoche sowie das offene Beteiligungsformat “St. Maria als …“. Die IBA Summerschool 2017 @iba_2027 und das Symposium “Denkraum Fülle/Leere” des Lehrstuhls für Stadtplanung und Entwerfen @studiourbanstragies öffneten 2017 den Kircheninnen- und außenraum für den Diskurs über die Zukunft unserer Städte. Der Workshop “Von temporär zu legendär” @hanna&sebastian im Rahmen des Landesgraduierten Stipendiums, 2018 erarbeitete Lösungsvorschläge, wie das bis dato temporäre Konzept „St. Maria als“ in ein dauerhaftes Konzept überführt werden kann. Die Workshopergebnisse mündeten in ein Pastorales Konzept welches Grundlage der Auslobung eines offiziellen Ideenwettbewerbs im kooperativen Verfahren zur konkreten Umgestaltung der Kirche wurde und welchen ich gemeinsam mit Wulf Kramer begleitete. Eine Jury, unter dem Vorsitz von Arno Lederer, hat über den Wettbewerb entschieden und den ersten Preis an das Fellbacher Büro von Professor Fritz Barth verliehen, der mit dem Büro Habermann Architekten einen Entwurf erarbeitet hatte. Der zweite Preis wurde an das Büro Meck Architekten aus München verliehen, eine Anerkennung ging an Anna Andrich.
2017 – Aktionswoche und offene Beteiligungsformat “St. Maria als …“ Konzeption, Entwurf und Umsetzung mit @stadtluecken
2017 – IBA Summerschool mit @iba_2027 Konzeption, Entwurf und Umsetzung mit Sarah Behrens & Hanna Noller & Ina Westheiden
2018 – Symposium – Denkraum Fülle/Leere Konzeption, Entwurf und Umsetzung mit Prof. Dr. Martina Baum Lehrstuhls für Stadtplanung und Entwerfen
2018 – Workshop “Von temporär zu legendär” mit Hanna Noller & Britta Strempel
2020 – 2021 Durchführung Ideenwettbewerb im kooperativen Verfahren mit vorgeschaltetem Auswahlverfahren mit Hanna Noller & Studio Yalla Yalla!
Ergebnisse hier – Wettbewerbe-aktuell2021 – 2022 Konzeption und Entwurf von Transformationsmöbeln für den provisorischen Kirchenraum St Maria





















































Artikel | Vom kooperativen Lernen und Lehren | in Bedingt Planbar | Wüstenrot Stiftung | 2021
Wie bilden wir die kommenden Gestalter:innen unserer Lebensumwelt für eine Zukunft aus, von der letztendlich niemand genau weiß, wohin diese führen wird?
Stadt und ihre Dimension wird zunehmend komplexer, dynamischer und unberechenbarer und macht unsere Zukunft mehr denn je bedingt planbar. Herausforderungen wie soziale Ungleichheit und Verdrängung, der Klimawandel oder Ressourcenverschwendung, verlangen von Stadtgestalter:innen nicht allein ökonomische Ausgangspunkte in den Vordergrund zu stellen, sondern auch soziale, ethische wie wissenschaftliche Aspekte relational denkend mit einzubeziehen. Die Frage nach der gesellschaftlichen Relevanz veranlasst verstärkt bekannte Situationen, Prozesse, Systeme neu zu hinterfragen, disziplinübergreifende Diskurse zu initiieren und gemeinsam neue Gestaltungsansätze zu formulieren. Wenn wir uns die Frage stellen, wie Architektur, Stadtplanung und im Grunde alle Raum gestaltenden Disziplinen konstruktive, sensible und kreative Begleiter für die Bewältigung lokaler und globaler Aufgaben sein können, dann muss zwangsläufig auch die Frage nach der zukünftigen Ausrichtung der Ausbildung gestellt werden.
Artikel | Vom kooperativen Lernen und Lehren | 2020
Sebastian Klawiter & Valerie Rehle
in BEDINGT PLANBAR. STÄDTEBAU UND STADTENTWICKLUNG IN DEUTSCHLAND UND EUROPA, Herausgegeben von der Wüstenrot Stiftung, Ludwigsburg, 2021
ISBN: 978-3-96075-014-7










Einladung im Rahmen der Medienhaus Lectures an der Universität der Künste Berlin über die Idee von einer kollektivernGestaltung zu sprechen.
Unser Vortragstitel – Wer macht’s? Versuch einer kollektiven Gestaltung „Die Arbeit in der interdisziplinären Gruppe zeigt uns immer wieder aufs Neue: Es gibt viele unterschiedliche Blickwinkel auf Situationen und Herausforderungen und damit ein großes Spektrum an möglichen Herangehensweisen und Lösungsansätzen. Dies gilt auch für Gestaltungsfragen, die wir mit jeder Aufgabe aufs neue entwurfsbasiert aushandeln müssen.“
Hanna Noller ist Schreinerin, Dipl. Betriebswirtin und studierte BWL und Architektur in Hamburg, Istanbul und Stuttgart. Sebastian Klawiter ist Schreinermeister und studierte anschließend Innenarchitektur und Architektur in Coburg und Stuttgart. Seit 2015 arbeiten Hanna&Sebastian gemeinsam in unterschiedlichen Maßstäben im Grenzbereich zwischen Stadtplanung, Architektur und Produktdesign. Dabei beschäftigen sie sich in ihren Arbeiten immer im Spannungsfeld von Handwerk, Architektur, Stadtplanung und Politik.
www.hannaundsebastian.de www.stadtluecken.de






Konzeption, Entwurf & Bau | Amt für öffentlichen Raum | Stadtlücken | 2020 – 2021
Was ist öffentlicher Raum? Welche funktionalen und räumlichen Qualitäten muss er erfüllen, damit er von allen Menschen genutzt werden kann und wird? Wer gestaltet und plant den öffentlichen Raum? Und welche Schnittstellen benötigen wir, um diesen in Zukunft gemeinschaftlich weiterzuentwickeln?
Mit der Gründung eines fiktiven “Amts für öffentlichen Raum” eröffnete der Verein Stadtlücken einen Denkraum für alle Bürger*innen der Stadt Stuttgart und darüber hinaus, um gemeinsam über Stadtraum und seine Gestaltung zu sprechen. Die Ausstellung zeigte bewusst keine konkreten Antworten sondern versuchte über die gesamte Ausstellungsdauer gemeinsam mit den Besucher*innen eine erste Definition für das “Amt für öffentlichen Raum” zu formulieren.
Architekturgalerie am Weißenhof Ausstellung 29. Oktober 2020 – 22. Sept 2021
https://www.instagram.com/amtfueroeffentlichenraum/
Fotos: Natalie Brehmer
Video: Martin Mannweiler
















Vertretungsproffesur | Klasse Entwerfen, Architektur und Design | Masterstudio Provisorische Architektur | Staatliche Akademie der Bildenden Künste Stuttgart | WiSe 2019/ 2020
Im Rahmen der Vertretungsprofessur im Wintersemester 2019/ 2020 machten sich die Studierenden selbstständig auf die Suche um eine Problemstellung im Kontext der Architektur zu erkennen und für dieses gemeinschaftlich mögliche Lösungsansätze zu erarbeiten war Kerngedanke im Masterstudio »Provisorische Architektur«, welches im Rahmen der Vertretungsprofessur Klasse Entwerfen, Architektur und Design an der im Wintersemester 2019/ 2020 an der Staatliche Akademie der Bildenden Künste Stuttgart im Wintersemester 2019/ 2020 umgesetzt wurde.
Ausgehend von textlichen Überlegungen Haus Rucker-Co´s zur Stadtgestaltung (vgl. Ortner 1977) wurde das Lehrformat als Vermittler:in zwischen Wissenschaft, Stadtverwaltung und Zivilgesellschaft sowie als Inkubator für transdisziplinäre Zusammenarbeit entwickelt. Gemeinsam suchten die Studierenden nach neuen Gestaltungsspielräumen, die es ihnen möglich machten, aktiv in Räume einzugreifen, um zwischen Realität und Vision zu vermitteln. Provisorische Architekturen dienten den Studierenden dabei als Werkzeug, neue Gestaltungsansätze im architektonischen Maßstab 1:1 zu testen, diese zu evaluieren um Potenziale für mögliche Veränderungsprozesse zu identifizieren. Die Projekte wurden so zu Strategien, die den Diskurs rund um den Wandel unserer bereits gebauten Umwelt weiter anstoßen und damit neue Denkweisen aufzeigen. Die Gestaltung ihrer unmittelbaren Umwelt eröffnete den Studierenden den Freiraum, ihre erarbeiteten Fragestellungen zu durchdringen, Haltung einzunehmen um Verantwortung für ihr Handeln zu übernehmen.
Projekte: Neckarinsel – Tine von Raven (Akademiepreis abk, Anerkennung die jungen Hugos bda); die If – Theresa Weiland, Paul Wöllner, Jim Wolff,Ralf Hinrichs; Playtopia – Regina Stolz; Raumhybrid – Gabriel Deliancourt



























Vertretungsprofessur | Klasse Entwerfen, Architektur und Design | Seminar Kooperation | Akademie der Bildenden Künste München | WiSe 2019/ 2020
Was genau versteht man eigentlich unter Kooperation? Im Rahmen der Gastprofessur im Wintersemester 2019/ 2020 machten wir uns im Seminar Kooperation mit Studierenden der Klasse Entwerfen, Architektur und Design, aktiv auf die Suche nach neuen Möglichkeiten der Zusammenarbeit. Was ist Kooperation? Was ist das eigene Talent? Welche Technik, Methode, Denkweise zeichnet die eigene Arbeit aus? Wann kooperieren Menschen? Was wollte ich schon immer mal ausprobieren? Und was macht mir eigentlich Spaß?
(Studierende: Becker Constanze, Chen Xinyu, @nele.esteban , @fiorenza_giometti @pro.jenga, Greiner Anne-Catherine, @tinevraven )
















Ko-Projektleitung | Abschlusspublikation | Forschungsprojekt | Uni Stuttgart | 2020
Abschlusspublikation entstanden im Rahmen des Forschungsprojektes Reallabors für nachhaltige Mobilitätskultur in Kooperation mit Prof. Dr. Martina Baum und Hanna Noller am Städtebau Institut, Lehrstuhl für Stadtplanung und Entwerfen der Uni Stuttgart.
Wie wollen wir in Zukunft zusammenleben? Welche Räume und Mobilitätsformen braucht es dafür und wie können wir diese gestalten? Wie können wir Transformation aktiv voranbringen? Was bewirken Realexperimente und Provisorische Architekturen? Welche Chancen eröffnet Lehre außerhalb akademischer Räume? Welche Lehrformate brauchen wir in Zukunft? Wie kann die Stadtverwaltung diese Projekte unterstützen und von ihnen profitieren? Und welche Rolle spielen dabei Bürger*innen, Studierende, Wissenschaftler*innen, Politik und Wirtschaft? Diese und viele weitere Fragen begleiteten das Future City Lab_Universität Stuttgart – Reallabor für nachhaltige Mobilitätskultur über fünf Jahre lang.
Sechs Zines ergänzend zur der 2018 erschienenen Publikation Stuttgart in Bewegung: Berichte von unterwegs geben weitere Ideen und mögliche Lösungswege auf diese Fragen.
Reallabor für nachhaltige Mobilitätskultur – Intro
Zine A Praktischer Städtebau & Provisorische Architektur – Transformation aktiv gestalten (Prof. Dr. Martina Baum & Sebastian Klawiter & Hanna Noller)
Zine C Realexperimente – Auf der Suche nach neuen Möglichkeiten (Prof. Dr. Martina Baum & Hanna Noller & Sebastian Klawiter)
Forschungsprojekt der Universität Stuttgart
SI Städtebau-Institut
Lehrstuhl für Stadtplanung und Entwerfen
Prof. Dr. Martina Baum
Sebastian Klawiter
Hanna Noller
Fotos: Sebastian Klawiter








Umsetzung Realexperimente | Forschungsprojekt Reallabor für nachhaltige Mobilitätskultur | Uni Stuttgart | 2020
Im Rahmen des Lehrformats Provisorische Architektur am Lehrstuhl für Stadtplanung und Entwerfen der Universität Stuttgart, wurden von Studierenden im Austausch mit Akteur*innen der Zivilgesellschaft über 20 Konzepte für Realexperimente entworfen. Eine Jury, bestehend aus Vertreter*innen von Stadtverwaltung, Wissenschaft, Kunst und Kultur (Susanne Scherz, Leiterin der Verkehrsbehörde der Stadt Stuttgart; Prof. Dr. Martina Baum, Städtebau-Institut, Universität Stuttgart; Paula Kohlmann, Dramaturgin am Theater Rampe; Dr. Torben Giese, Direktor des StadtPalais – Museum für Stuttgart und Andreas Hofer, Intendant der IBA 2027 Stadt- Region Stuttgart) hat nach vorher definierten Auswahlkriterien drei Realexperimente zur Eins-zu-eins Umsetzung im Stadtraum ausgewählt:
StadtRegal Eine Intervention zur Frage nach der sozialen Gerechtigkeit im öffentlichen Raum (Entwurf: Ali Hajinaghiyoun, Felix Haußmann und Martin Schusser)
Stuttgarter Luftbahn Ein Narrativ vergangener Zukunfts- visionen (Entwurf: Christian Kohler)
How do you roll? Eine performative Mobilitätsdemon- stration für vielfältige Mobilitätskultur (Entwurf: Anna Dörrig, Cristina Estanislao Molina, Feydrea Vialista, Paul Stockhausen)
Die drei Realexperimente beschäftigen sich alle mit Fragen rund um eine nachhaltige Mobilitätskultur. Wie wollen wir in Zukunft zusammenleben? Welche Räume und Mobilitätsformen braucht es dafür und wie können wir diese gestalten? Wie können wir Transformation aktiv voran bringen? Was bewirken Realexperimente und Provisorische Architekturen? Welche Chancen eröffnet Lehre außerhalb akademischer Räume?
Koordination des Forschungsprojektes Future City Lab – Reallabor für nachhaltige Mobilitätskultur und Umsetzung der Realexperimente 2018-2020.
Forschungsprojekt der Universität Stuttgart
SI Städtebau-Institut
Lehrstuhl für Stadtplanung und Entwerfen
Prof. Dr. Martina Baum
Sebastian Klawiter
Hanna Noller


















Innenarchitektur | Chocolatier Kevin Kugel | Sindelfingen | 2020
Innenraumgestaltung der Produktions-, Workshop- und Verkaufsflächen des Chocolatier Kevin Kugel @kevinkugel in Sindelfingen (2020) gemeinsam mit Hanna Noller.
Fotos 1,2,3,5,6 @nataliebrehmer































Ideas for the Ethnological Museum of the Future | Stuttgart | 2020
Panel Moderation: Museum Architecture/ Museumsarchitektur with Hanna Noller
Like many ethnological museums, the LindenMuseum is undergoing a process of transformation. In an increasingly diverse society, we must renegotiate the role and relevance of ethnological museums. The support provided through the Initiative for Ethnological Collections enables us to experimentally develop the basis for a new orientation. Following the principle of the laboratory, we develop and test new forms of museum knowledge production, mediation, and presentation in eight LindenLabs.
The second section focused on the role of architecture of and for museums. What possibilities does a new building offer for the work of museums? What is its relationship to the city and its inhabitants? Using examples and ideas from various fields of architectural practice, the contributors will open up perspectives on these issues. Complemented by perspectives from Stuttgart, the subsequent panel discussed how the interplay between the tasks and spatial requirements of a museum and its social role in the city can be implemented in an attractive architectural design.
Guests:
Peter Vaughan Studio Asfi Khan, Museums und Ausstellungsarchitektur
Michiel Riedijk, Neue Museen: Auf der Suche nach einem Ausdruck










Konzeption, Entwurf & Bau | Visionäre Räume – Spaces of Difference | Stadtlücken | 2019
Was sind Visionäre Räume? Wie entstehen sie? Und wie können sie weiterentwickelt werden? Mit dem Beitrag “Visionäre Schäume” transportierte der Verein Stadtlücken e.v. den Diskurs rund um die autogerechte Stadt auch in die Region. Als bauliches und programmatisches Relikt einer autogerechten Stadtplanung bietet der Österreichische Platz eine offene Projektionsfläche für Experimente und Visionen. Was ist der Österreichische Platz eigentlich? Was war dieser Platz einmal? Was kann dieser Ort einmal werden? Anhand maßstabsübergreifender Elemente erzählt Stadtlücken die Entwicklung dieses Visionären Raumes und zeigt Entwicklungspotentiale für eine mögliche Zukunft auf.
Weiter ausstellende Künstler- und Architektenkollektive waren Breathe Earth Collective, Bureau Baubotanik und FAMED.
Visionäre Räume/ Spaces of Difference wurde kuratiert von Susanne Jakob, Kunstwissenschaftlerin M.A., künstlerische Leiterin des KV NEUHAUSEN und Prof. Florian van het Hekke, Dipl. Ing, Architekt/BDA und Professor für Zeichnen und Entwerfen in der Fachgruppe Architektur an der Hochschule Erfurt.
Visionäre Räume/Spaces of Difference wurde gefördert von: Stiftung Kunstfonds, Ministerium für Wissenschaft, Forschung & Kunst, Kommune Neuhausen/Fildern und Stiftung Württembergische Gemeinde-Versicherung a.G.
Fotos: Natalie Brehmer, Hanna Noller






















Strategie, Konzeption, Entwurf und Umsetzung | Urbanen Experimentierfeld | Stadtlücken | 2018 – 2019
Der Österreichische Platz ist eine echte Chance. Bis zum Frühjahr 2018 wurde der Raum unter der Paulinenbrücke von der Stadt Stuttgart an eine Parkplatzfirma verpachtet. Angeregt durch die Aktionen der Stadtlücken im Herbst 2016 hat der Verein gemeinsam mit der Stadt Stuttgart diesen Raum für zwei Jahre als Experimentierfeld geöffnet. Er wurde ein Ort des Miteinanders, des Austauschs, der Kultur und der Geselligkeit, ein Ort für alle. Dabei stellten sich viele Fragen: Welche Nutzung verträgt ein solch spezieller Ort? Wie geht es den verschiedenen Interessengruppen die diesen Raum täglich frequentieren? Lässt sich einer der ausprobierten Nutzungen auf Dauer verstetigen?
Er verändert sich, ist unfertig, ausbaufähig, vermittelt und konfrontiert Bewohner mit der Frage wie sie in Ihrer Stadt leben wollen. Kontinuierlich werden Teile des Platzes aufgebaut, ausprobiert, umgebaut und wieder abgebaut. Ideen werden in unterschiedlichen Maßstäben, Raumelementen und Formen auf dem 30m x 20m breiten Spielraum getestet und bieten dadurch auf Zeit Möglichkeit diverse Situationen und Atmosphären zu erleben. Sie sind Provisorien, sie sind spekulativ, sie sind beweglich, sie sind wegräumbar. Die sich entwickelnde Platzgrafik begleitet, verknüpft und dokumentiert visuell die unterschiedlichen Experimente und ermöglicht den Ausbau des Platzes Pö á Pö.
Alle Ideen werden gesammelt, dokumentiert und archiviert. Sie sollen später als Grundlage für zukünftige Planungen unter der Paulinenbrücke und dem Österreichischen Platz dienen.
2018/2019 führte der Verein ehrenamtlich eine Experimentierphase durch mit einem Budget von 80.000 € und über 150 Aktionen unter Einbindung unterschiedlicher Akteur:innen der Stadt. 2020 bewilligte der Gemeinderat daraufhin 1,6 Mio. Euro zur Weiterentwicklung und Verstetigung des „Kooperativen Stadtraums“.












































Seminar & Ausstellungsarchitektur | Provisorische Architektur | 2019
Neue Realexperimente für Stuttgart – Eine Seminarausstellung Di. 01.02.- So. 28.02.2019, im StadtPalais Stuttgart
Die Ausstellung Provisorische Architektur – Neue Realexperimente für Stuttgart zeigte öffentlich die Entwurfsansätze der Studierenden und sollten so die Besucher*innen zum Nachdenken über mögliche Zukunftsszenarien der Mobilität anregen. Bewusst wurden nur Konzepte und keine fertige gedachten Entwürfe gezeigt, erheben Provisorien doch keinen Anspruch auf Perfektion und lassen somit mehr Spielraum für eigene Interpretation. Die Lage des Stuttgarter Stadtmuseums als Ausstellungsort gab die Möglichkeit, die akademischen Räume der Hochschule zu verlassen und die Arbeiten mit direktem Blick auf Stuttgarts Mobilität öffentlich in die Stadt hinein wirken zu lassen. Die provisorische Ausstellungsarchitektur aus Gerüstelementen wurde als Teil des Seminars gemeinsam mit den Studierenden aufgebaut. Sie wurde als inspirierender Rundgang für die Besucher*innen geplant und ermöglichte durch ihre u-förmige Architektur einen Diskussionsraum auszubilden, der den Blick direkt auf Stuttgarts Mobilität lenkte. Der offene Austausch mit der Stadtgesellschaft sollte den Diskurs rund um eine nachhaltige Mobilitätskultur weiter anregen und als Nährboden für neue Ideen und Konzepte dienen. Die Ausstellung stellte Fragen in Form von Experimenten, die mögliche Veränderungen im Stadtraum Stuttgart simulierten. Sie war wegräumbar.
Organisation durch:
Future City Lab – Reallabor für nachhaltige Mobilitätskultur
Lehrstuhl für Stadtplanung und Entwerfen, Universität Stuttgart
Seminar-Leitung und Ausstellungsgestaltung: Sebastian Klawiter & Hanna Noller
Seminar-Betreuung: Valerie Rehle, Doris Lindner, Andreas Beulich, Sascha Bauer
Jury-Mitglieder: Prof. Dr. Martina Baum, Dr. Torben Giese, Andreas Hofer, Susanne Scherz, Paula Kohlmann, Patrick Ruthardt
Grafik: studiopanorama.de
Video: Martin Mannweiler
Seminar-Gruppe:
Leonie Achin, Rosa Ackermann, Emirhan Akin, Ginster Bauer, Lewin Biskupski, André Bombera, Anna Brehm, Ella Bortenschlager, Aysin Can, Marisa Cianfriglia, Philipp Deilmann, Anna Dörrig, Felix Fernkorn, Annika Gapp, Anna-Sophie Gantinas, Ignacio Garcia Alvarez, Adrien Louis Gauthier, Manon Gerlier, Ramona Gilde, Patrick Haiser, Ali Hajinaghiyoun, Felix Haußmann, Max Henselmann, Shirin Hillawi, Andrea Irion, Lea Jürgens, Boris Kadiyski, Christian Kohler, Karla Laukeningkat, Anna Lenz, Thomas Lesch, Julius Lutterbüse, Annalisa Massaro, Julia Meister, Cristina Estanislao Molina, Nicole Müller, Nina Müller, Jana Nolting, Dalya Ortak, Francesca Pesce, Miikka Pihamaa, Nikolina Popovic, Beatriz Quintiliano, Tara Schattschneider, Martin Schusser, Christian Schweitzer, Aleksandra Shopova, Jonathan Siegle, Lisa Stadtmüller, Anne Steullet, Paul Stockhausen, Kirsten Stuke, Emre Tasan, Amila Terzic, Dijana Todorović, Harun Tören, Marikita Travlou, Feydrea Viaista, Johanna Vogl-Fernheim, Mariella Weber, Laura Wiesenfarth, Nazerke Zhumalina, Edin Zoletic
Hans Ramsperger (Zivilgesellschaft), Conny Krieger und Verena Loidl (Zivilgesellschaft)
Fotos: Natalie Brehmer, Sebastian Klawiter, Hanna Noller














Ausstellungsbeitrag | Galerie am Weißenhof | Stuttgart Oktober 2018
Gestaltung des Ausstellungsbeitrags gemeinsam mit Stadtlücken im Rahmen der Anerkennung im weißenhofarchitekturförderpreis waf 6 für junge architektinnen und architekten, der Galerie am Weißenhof, Stuttgart. Vom 18. Oktober bis zum 6. Januar 2019 war die kleine STADTLÜCKEN-Ausstellung für Besucher:innen geöffnet und man konnte einen Einblick in die Projekte und Arbeitsweisen des Vereins erhalten. Darüber stellen aus: maxottozitzelsberger (Preisträger) und Buero Kofink Schels (Anerkennung).
Projekt Information
Henning Erhardt Romina Grillo Prof. Klaus Jan Philipp Herwig Spiegl (Vorsitz) Liviu Vasiu
Organisation Andreas Hardegger, Stuttgart Prof. Antje Krauter, Stuttgart
Vorprüfung
Andreas Hardegger, Stuttgart René Heusler, Stuttgart






Konzeption, Organisation und Durchführung | Symposium| Uni Stuttgart | 2018
Das Symposium “Fülle und Leere – Neue Impulse für die Diskussion über Stadt“ fand am 3. Mai 2018 in der Kirche St. Maria in Stuttgart statt. Als offener Denkraum als Diskussionsforum war es Teil eines fortlaufenden Forschungsthemas mit welchem sich der Lehrstuhl für Stadtplanung und Entwerfen des Städtebau-Institutes der Universität Stuttgart unter Martina Baum beschäftigt.
In der Stadt werden permanent – bewusst wie unbewusst – Dialoge zwischen Raum und Nutzer geführt. Wir diskutierten im Rahmen der Veranstaltung die Hypothese, dass dieser Dialog an und in städtischen Alltagsorten konstruktiv und stimulierend sein muss, damit Stadt – gesellschaftlich wie räumlich – robust und produktiv wirken kann. Im Rahmen der Veranstaltung Fülle und Leere luden wir unterschiedliche Disziplinen ein, ihre Perspektiven zu Fülle und Leere aufzuzeigen. Aus Philosophie, Soziologie, Theologie, Musik, Tanz, Kunst und Architektur bekamen wir neue Impulse für die Diskussion über Stadt.
Absatz
Folgende Referent:innen waren für Vorträge und Performances eingeladen. Prof. Dr. Armin Nassehi, München (Soziologie) Prof. Gabi Schillig, Düsseldorf (Kunst / Raumintervention) Prof. Dr. Dr. Habil. Hans-Joachim Sander, Salzburg (Theologie) Prof. Rainer Tempel, Musikhochschule Stuttgart (Jazz Komposition / Klavier) Prof. Julika Mayer, Hochschule für Musik und Darstellende Kunst Stuttgart (Theater) Prof. Martina Baum, Universität Stuttgart (Stadtplanung und Architektur)
Forschungsprojekt der Universität Stuttgart SI Städtebau-Institut Lehrstuhl für Stadtplanung und Entwerfen Prof. Dr. Martina Baum Sebastian Klawiter Hanna Noller Fotos: Sebastian Klawiter & Hanna Noller




























Forschung Ressource Ländlicher Raum | Perspektiven auf und im ländlichen Raum | Uni Stuttgart | 2017
Im Rahmen des Forschungsfelds „Ressource Ländlicher Raum“ beschäftigen wir uns mit den Perspektiven auf und den Potenzialen im ländlichen Raum in Baden-Württemberg. In verschiedenen Teilprojekten loten wir die Beziehung und Wechselwirkungen zwischen Stadt und Land aus und versuchen Rollenmuster, Begabungen und Grenzen herauszuarbeiten. Hierzu ist es notwendig zu hinterfragen was hinter den Begriffen Stadt und Land steht und deutlich zu machen, dass die Definitionen je nach Perspektive des Fragenden andere sein werden.
Dieses Teilprojekt beschäftigt sich mit der Perspektive auf den ländlichen Raum und den Bildern, die darüber kommuniziert werden am Beispiel der Region Heilbronn-Franken. Vier Ortschaften wurden hierzu ausgewählt und an Hand der gleichen Methodik erfasst und bereist. Durch diese experimentelle Raumwahrnehmung möchten wir die Bilder, welche über einen Ort vermittelt werden mit jenen der Realität vor Ort überlagern.
Trotz aller Renaissance der Städte ist der ländliche Raum in den letzten Jahren wieder verstärkt ein Sehnsuchtsort geworden. Ursprünglichkeit, Ruhe, Abgeschiedenheit, einfache Lebensweise und Ortsverbundenheit werden projektiert. Der Zeitschrif-tenmarkt liefert die passenden Bilder und Geschichten in immenser Auflage mit Leserschaft aus dem urbanen wie auch ruralen Kontext. Auch das regionale Marketing vermittelt idyllische Ort- und Landschaften mit unverwechselbarer Identität. Können diese Bilder in der Realität wiedergefunden werden? Welche Situation zeigt sich in den Orten räumlich, funktional wie auch atmosphärisch? Welche Typologien und Ästhetik wird produziert?
Um Antworten auf diese Fragen zu finden, begaben wir uns auf eine Expedition in den ländlichen Raum der Region Heilbronn-Franken. Für jeweils drei Tage bereisten wir die Orte Widdern, Werbach, Blaufelden und Kupferzell. Ausgewählt wurden diese aufgrund der Landschaftsbildqualität in Kombination mit der zu erwartenden Bevölkerungsentwicklung.
Zunächst wurden die Bilder, welche über diese Orte im Internet kommuniziert werden gesichtet. Im Anschluss erfolgte die Bereisung mit der immer glei-chen Vorgehensweise der Erkundung vor Ort. Die Bilder der vorgefundenen Situationen wurden mittels Fotografien erfasst. Ergänzend hierzu wurden die Orte der höchsten Funktionsdichte und Kommunikationsfrequenz in jedem Ort erkundet. Die beiden Perspektiven der Außenwirkung über die Medien und der realen Raumerfahrung lieferten sehr interessante Erkenntnisse über Wunsch und Wirklichkeit im ländlichen Raum. Die idyllischen Werbebilder zeigten nur einen kleinen Ausschnitt der gebauten Realität. Vor Ort immer die gleiche Logik: verfallende Ortskerne umrahmt von immer weiter wachsen-den Einfamilienhaussiedlungen und Gewerbegebieten am Rand. Weite Teile der Ortschaften verfügen nicht mehr über unverwechselbare Ortsidentität sondern reproduzieren internationalisierte und kommerzialisierte Codes zu generischen Siedlungen: Schwedenhäuser aus rot lackiertem Holz, Villen im Toskanastil, Bauträgerhäuser mit Wärmedämmverbundsystem, kanadische Blockhausarchitektur und kubistische Gebäude in Anlehnung an die Moderne versammeln sich zu einer austauschbaren und eigenschaftslosen Kakophonie. Das Gleiche gilt für die Gewerbegebiete. Auch hier die immer gleichen Architekturen der Handelsketten und Gewerbebauten umrahmt von großen Parkplätzen und aufmerksamkeitsheischenden Werbeschildern. Ist man auf dem Land oder in der Stadt, in Kupferzell oder Stuttgart – nicht nachvollziehbar.
Regionale Bautradition und Bauweisen lassen sich nur noch in den Kernen finden, weiterentwickelt und in die Zukunft gebracht wurden sie nicht. Eine urbanisierte Gesellschaft produziert hier hingegen ein ortsunabhängiges, generisches Lebensumfeld. Highspeed Internet, die Medien und Konsum-konzerne bringen die Welt nach Werbach. Stadt oder Land, der Kontext wird zur Kulisse. Orte der Gemeinschaft sind nicht mehr der Dorfplatz und der Dorfbäcker sondern die Autobahnraststätte an der A6 und der Großbäcker im Supermarkt mit Bestuhlung auf dem Parkplatz.
Es stellt sich nun die Frage wie mit dieser Diskrepanz von Wunsch und Wirklichkeit umgegangen wird. Ist der idyllische ländliche Raum mit seinen zugeschriebenen Potenzialen und Werten ein längst vergangenes Wunschbild und wird somit zum Mythos? Reicht die mediale Reproduktion davon durch Bilder um die Bedürfnisse zu befriedigen und braucht es gar keine bauliche Entsprechung mehr? Diese Fragen müssen diskutiert werden. Handlungsbedarf zeigt sich im Umgang mit den Ortszentren. Sie sind die Verlierer dieser Entwicklung. Gering genutzte oder leerstehende Wohngebäude, aufgelassene Hofstellen und geschlossene Ladengeschäfte prägen das Bild. Welche Rolle haben sie in Zukunft? Wer möchte hier wie leben und arbeiten? Braucht es die alten Gebäude noch oder braucht es einen radikalen Neuanfang? Werden sie zu Kulissen und musealisiert oder können sie weiterhin aktiver Teil des Alltags sein? Auch diese Fragen bedürfen einer offenen Diskussion, die wir gerne anstoßen wollen.
Forschungsprojekt der Universität Stuttgart SI Städtebau-Institut Lehrstuhl für Stadtplanung und Entwerfen Prof. Dr. Martina Baum Sebastian Klawiter
Hanna Noller










Entwurf und Bauworkshop mit den künftigen Nutzer*innen des Balu43, Kinder- und Jugendhilfe für die Balu g Gmbh in der Münchner Innenstadt.
Fotos gif Valerie Rehle
Workshop Isabel Thoma










Gesamtkonzeption der ersten IBA – Summerschool Stuttgart mit Sarah Behrens, Hanna Noller und Ina Westheiden.
Im Rahmen der IBA SUMMERSCHOOL wurden neue Möglichkeitsräume in der baden-württembergischen Hauptstadt ausgelotet. Sechs Architekturfakultäten aus Stuttgart, Nürtingen, Wien und Kopenhagen setzten sich für eine Woche gemeinsam aus ihren jeweiligen Blickwinkeln mit Stuttgart und seiner Region auseinander. Eingeladen, um an dem Diskurs teilzunehmen waren neben den Studierenden auch alle Stadt- und Kulturinteressierte. Morgendliche Input-Vorträge, intensive Workshops und abendliche Diskussionsrunden an der Bar verknüpften die Summerschool mit der Stadt. In einem großen Plenum am Ende der Summerschool wurden die im Laufe der Woche entstandenen Themen und Arbeiten präsentiert, diskutiert und kritisch hinterfragt.
Seminar Strategy of small interventions
Public space is a limited resource in cities and is shaped by the negotiation processes of different players. The most successful player in cities is usually the car, which manages to turn public space into a street space. This becomes particularly clear on the example of the play street – much street and less play.
As part of the IBA School 2017, the student group of the University of Stuttgart explored traffic and play spaces, developed interventions in dialogue, played at found places, explored possibilities and documented the experienced negotiation processes. Through interventions on site and in dialogue with the public, the perception of the potential of public space has been sharpened and additional possibilities of use identified. The strategies of small interventions such as sidewalk barbecues, football games on the street, and talks on parking lots can have a big impact on our future cities and can be considered as a starting point to see our surroundings in a completely new way.
17.07.2017 – 21.07.2017, Katholische Kirche St. Maria und Reallabor Spacesharing
Staff: Martina Baum, Daniel Schönle, Hanna Noller, Sebastian Klawiter, Jakob Rauscher
Students: Jasmin Steinmetz, Silva Maringele, Tillmann Bollow, Miriam Harst, Ludwig Müller, Julia Meister
Host: Architektenkammer Baden-Württemberg, Hochschule für Technik Stuttgart, Universität Stuttgart, Hochschule für Wirtschaft und Umwelt Nürtingen-Geislingen, Universidade de Porto, Akademie der Bildenden Künste Wien
Organisation: Hanna Noller&Sebastian Klawiter, Sarah Behrens und Ina Westheiden
Poster graphic: Mark Julien Hahn und Jan Robert Obst

















Konzeption, Entwurf & Bau | Souvenirshop | Stadtlücken | 2016
Mit dem Entwurf eines Souvenirshops, einer offenen Veranstaltungsreihe und einem digitalanalogen Abstimmungstool hat der Verein Stadtlücken in einer zweiwöchigen Aktion im Oktober 2016 auf den Österreichischen Platz und die Paulinenbrücke aufmerksam gemacht. Der Verein wollte mit dieser Aktion die Einwohner dazu anregen, über eine alternative Nutzung und Umgestaltung dieses Ortes nachzudenken, um den bis dahin durch einen Parkplatz besetzen Raum öffentlich zugänglich und somit für die Stadtgellschaft wieder nutzbar zu machen. Ideen, Wünsche und Antworten, die gemeinsam mit den Bürger*innen am Österreichischen Platz gefunden wurden, sollten dort nicht bleiben, sondern wurden von der Paulinenbrücke direkt ins Herz der Stadtverwaltung getragen. Darum bespielte Stadtlücken zeitgleich zum Kiosk eine Ausstellung im zweiten Stock des Rathauses. So konnte zwischen den zwei Orten ein täglicher Austausch stattfinden und eine Diskussion über die Zukunft des Österreichischen Platzes iniziert werden. Leere Fragetafeln wurden morgens zum Kiosk getragen und wanderten abends beschrieben wieder zurück ins Rathaus. Zur Stuttgart Nacht bildeten die gesammelten Tafeln, gemeinsam mit den ausgestellten Souvenirs und der Live-Übertragung der Umfrage eine Zusammenfassung der Aktion am Österreichischen Platz.
Artikel, Stuttgarter Nachrichten

























Die Bohrung | Intervention | Ausstellungsbeitrag |2016
in Zusammenarbeit mit Hanna Noller & Simon Jung
Zusammen Auseinandersetzen N° 1 LOTTE – LAND OF THE TEMPORARY ETERNITY
Wir sprechen über unsere Arbeit, unsere Erfahrungen und Hoffnungen. Wir diskutieren über Stadt, wir diskutieren über Raum, Kunst, Architektur, Investoren, den Kapitalismus, warum wir etwas tun und wie wichtig es ist, etwas nicht zu tun. Wir sprechen von Verantwortungsbewusstsein, Haltung, Systeme und Gesetzesänderungen. Spaziergänge durch die Stadt führen uns Situationen vor Augen und lassen uns Möglichkeiten entdecken.
Wir bohren am 06.10.2016 um 16:51 Uhr ein Loch durch den Asphalt. 70182 Stuttgart
Bohrung, Durchmesser: 20 mm, Tiefe: 125 mm
Publikation: Kunst im öffentlichen Raum in Stuttgart Public Art Stuttgart, Matter Of Stuttgart, Kerber Verlag
Link zum Video: https://vimeo.com/232449846
























Masterarbeit | Stadtlücken – Strategien für Urban Commons | 2016
Unsere Aufgabe als Architekt*innen und Gestalter*innen sehen wir in der Sichtbarmachung von Potenzialen, im Aufzeigen dessen, was uns im Alltag nicht mehr auffällt, weil es schon zu selbstverständlich geworden ist und in der Initiierung eines transformativen Prozesses. Ausgangspunkt unserer gemeinsamen Arbeit ist die Gesamtbetrachtung der Stadt.
Wir, das sind Hanna Noller und Sebastian Klawiter wollen Lücken im diesem so verplanten und verspekulierten Stadtraum Stuttgart finden, sichtbar machen und ins Bewusstsein der Bürger*innen rücken. Ziel ist es, den entdeckten ungenutzten Raum zu öffnen und diesen für Menschen sowie deren Bedürfnisse zugänglich und gemeinsam nutzbar zu machen.
Die gefundenen Lücken werden kategorisiert in: Baulücken, Zeitlücken, Soziale Lücken, Rechtliche Lücken sowie Wissenslücken und auf dem Blog www.stadtluecken.de öffentlich zugänglich gemacht. Diese Stadtlücken bieten potentielle Angriffspunkte und Möglichkeiten, im immer enger werdenden Stuttgart dennoch Initiative zu ergreifen.
Gezielte Interventionen vor Ort sowie die Vernetzung und Kombination bereits bestehender Projekte bieten die Chance, für gemeinsamen Raum und für das Recht auf Stadt ein emergierendes Bewusstsein zu schaffen. Die Stadt gehört ihren Bewohnern und soll von diesen mitgestaltet werden.
Um das Bewusstsein für Stadt und die jeweiligen Lücken vor Ort sichtbar zu machen und diese im Sinne der Be- und Anwohner*innen füllen zu können, haben wir eine transformierende Maschinerie entwickelt. Mit deren Hilfe ist es möglich, die unterschiedlichen Stadtlücken ins Blickfeld der Menschen zu rücken und konkrete Anwendungen für diese Orte zu finden.
Masterarbeit an der Staattlichen Akademie der bildenen Künste Stuttgart. Wintersemester 2015/ 2016, Ausgezeichnet mit dem Herta-Maria-Witzemann-Preis
Aus dieser Arbeit hat sich inzwischen der mehrfach ausgezeichnete gemeinnützige Verein Stadtlücken e.V. entwickelt: www.stadtluecken.de
























Reallabor Spacesharing | 24 h Echtzeitexperiment | 2015
Nutzungsintensivierung von Gebäudebestand durch Mehrfachnutzung und dynamische Programmierung
An der Staatlichen Akademie der Bildenden Künste Stuttgart werden unter Leitung der Fachgruppe Architektur seit Januar 2015 mit dem über drei Jahre angelegten Forschungsprojekt „Reallabor Space Sharing“ neue Konzepte für die Steigerung der Nutzungsintensivierung von Gebäuden in städtischem Kontext entwickelt und umgesetzt.
Der Forschungsansatz des Reallabors Space Sharing setzt sich intensiv mit dem Begriff der Nachhaltigkeit auseinander, der eng mit dem Ressourcenbedarf einer Gesellschaft und damit mit der Ressourceneffizienz verbunden ist. Die Entwicklung der letzten Jahrzehnte zeigt, dass in städtischen Wachstumsregionen wie Stuttgart die umbauten Volumen und Nutzflächen zunehmen, während die Nutzungsdichte sinkt. Ziel des Projektvorhabens ist es, Raumnutzungen des Gebäudebestands mit dem bestehenden Bedarf heterogener Akteure räumlich zu kombinieren und somit die Nutzungseffizienz von Gebäuden in städtischen Zentren zu steigern.
Für den offiziellen Start der baden-württembergischen Reallabore organisierten wir in Zusammenarbeit mit Antonia Terhedebrügge, Lorenz Boigner, Meret Boss, Hanna Noller, Ute Müller-Schlösser, Sarah Baumann, Nike Mack, Samuel Schmidt, Malte Bösche, Aaron Schirrmann, Anna Gohmert, Swing Bohéme Orchestra, Sabrina Karl, Phillip Günthner, und vielen mehr auf der eintägigen Auftaktveranstaltung “BaWü-Labs GO! Start der Reallabore in Baden-Württemberg” am 30. April 2015 das 24h Echtzeitexperiment.
Forschungsprojekt der Staatlichen Akademie der Bildenden Künste Stuttgart
Fachgruppe Architektur
Prof. Matthias Rudolph
Prof. Mark Blaschitz (bis 06/2018)
Prof. Fahim Mohammadi (von 10/2015 bis 06/2018)
Prof. Andreas Quednau








































Zines | Reallabor Spacesharing | 2015
Im Zuge des theoretischen Teils der Masterthesis Stadtlücken – Strategie für Urban Commons untersuchte Sebastian Klawiter gemeinsam mit Hanna Noller unabhängig vom tatsächlichen Inhalt des Forschungsprojekts dessen Titel space – sharing genauer und rückten die Frage: „Was ist Raum und wie nutzen wir ihn?“ in den Mittelpunkt der Arbeit.
An der Staatlichen Akademie der Bildenden Künste Stuttgart wurden unter der Leitung der Fachgruppe Architektur von Januar 2015 bis August 2020 mit dem über fünf Jahre angelegten Forschungsprojekt »Reallabor Spacesharing« neue Konzepte für die Steigerung der Nutzungsintensivierung von Gebäuden in städtischem Kontext entwickelt und umgesetzt. Das Projekt wurde über den Innovations- und Qualitätsfonds des Landes Baden-Württemberg durch das Ministerium für Wissenschaft, Forschung und Kunst gefördert.
https://issuu.com/spacesharing
Um den Wissensaustausch sowie die Kommunikation unter den Teilnehmer*innen und Interessierten des Forschungsprojektes »Reallabor Spacesharing« zu stärken, initiieren wir mit unserer Arbeit eine »Open-Source-Zines«-Sammlung (Low-Budget Magazine). Welche es ermöglichten einen einfacheren Austausch, Umgang und eine stärkere Diskussion mit den erarbeiteten Thematiken zu gewährleisten. Weiter können sie die vielfältigen Inhalte, greifbarer und für alle Beteiligten schneller zugänglich machen. Um den übergeordneten Zusammenhang der einzelnen Hefte zu visualisieren, wurde in interdisziplinärer Zusammenarbeit mit Studierenden des Studienfachs Kommunikationdesign (Ute Müller-Schlösser, Antonia Terhedebrügge, Sarah Baumann, Nike Mack) eine Layoutvorlage entwickelt, welche allen Beteiligten zur Verfügung gestellt wird.
Grafik: Ute Müller-Schlösser, Antonie Tehedebrügge , Nike Mack
























Cyanacrylat, Cyanoacrylat oder Alkylcyanacrylat bezeichnet polymerisierbare, bei Raumtemperatur flüssige chemische Verbindungen. Im allgemeinen Sprachgebrauch sind diese Klebstoffe unter dem Begriff Sekundenkleber oder Superglue bekannt und härten durch eine als Kettenreaktion ablaufende Polymerisation gestartet durch natürliche Luftfeuchtigkeit aus.
Das Materialexperiment untersucht genau diesen Aushärtungsprozess und die dabei entstehenden ästhetischen und performativen Qualitäten. Der Klebstoff wurde nicht wie bei regulärer Anwendung in einer Schichtdicken von ca. 0,2 mm und unter Sauerstoffabschluss eingesetzt, sondern längere Zeit Sauerstoff bei großer Schichtdicke. Für den Aushärtungsprozess hat das zur Folge, dass er exponentiell länger dauert und dadurch eine besondere Formensprache auf der Mikrometerebene entwickelt.
Fotos: Sebastian Klawiter












Bachelorarbeit | Digitales Flechtwerkprojekt | Hochschule Coburg
Die Arbeit untersucht digitale Beziehungen, welche die wir täglich mit anderen Nutzer:innen eingehen sowie durch deren Verknüpfungen untereinander. Sie zeigen unser soziale Beziehungsgeflecht, in dem wir uns täglich online bewegen und vernetzen. Der Entwurf des Observatorium verfolgt das Ziel, digitale Flechtwerke in die analoge Realität zu transportieren, um diese auf eine neue Art und Weise sichtbar zu machen. Durch das reale Erleben und Beobachten der eigenen digitalen Verflechtung soll bei den Besucher:innen ein Bewusstsein als auch eine konkrete Vorstellung für die Dimension dieser digitalen Verknüpfungen entsehen. Das Projekt will das Thema so in den öffentlichen Fokus rücken, ohne dabei mit erhobenem Zeigefinger zu belehren oder zu mahnen. Diese Offenlegung des digitalen Beziehungsgeflechts soll zu weiteren Diskussionen und Debatten zu diesem Thema unter den Besuchern anregen. Das Observatorium informiert und erläutert zusätzlich interessierten Besuchern Zusammenhänge, Fakten und Hintergründe zu digitalen Flechtwerken und deren Entstehung. Es erzeugt somit Transparenz, regt zum Nachdenken an und bringt Offenheit in dieses undurchsichtige Netz aus Daten und Informationen, welches uns tagtäglich umgibt.
















Wettbewerbsgewinn | Design a Church Chair | 2012
gemeinsam mit Nicholas Shurey: first category, students and recent graduates
Traditionelle Kirchenbänke durch eine Bestuhlung zu ersetzen, eröffnet den Gemeinden die Möglichkeit, ihre immer weniger besuchten Kirchen vielseitiger, öfter und entsprechend ihres Bedarfs zu nutzen. Dies würde den Kirchen ein breites Spektrum an neuen Nutzungsmöglichkeiten garantieren und die Stellung der Kirchen als öffentlichen Raum in der Gesellschaft neu definieren. In diesem Fall ist es jedoch die Verantwortung von uns als Designers, nicht einen einzelnen Stuhl zu gestalten, sondern die Idee einer ganzen Familie von Stühlen zu verfolgen. Einer solchen Stuhlfamilie muss es möglich sein, sich in eine Vielzahl von architektonischen Kontexten rücksichtsvoll einzufügen. Die Idee, Stühle als eine Gemeinschaft zu begreifen und nicht als einzelne Objekte, geht auf die Definition der Kirche als Versammlungsort von Gläubigen zurück. Diese Idee ist zentraler Ausgangspunkt unseres Designprozesses und des daraus entstandenen Entwurfes.
Was diesen Stuhl maßgeblich charakterisiert ist, dass er in einer Gruppe aufgestellt seine ganze Qualität zeigt und nicht in seiner Masse untergeht. Dies unterscheidet unsere Konzeption von gewöhnlichen Kirchenstühlen. Durch die 2 Grad abgeschrägten Beine entsteht eine natürliche Trennung der Sitzflächen. Das Berühren der Stuhlbeine am Boden betont wiederum ihre Zusammengehörigkeit. Die weiß gekalkte Rückenlehne verbindet alle Stühle zu einem durchgehenden Band und fügen sich in die Architektur aus Bögen, Säulen und deren Basen behutsam ein.
Der Wettbewerb „Design a church chair“ ermöglichte etablierten Designern, Designstudenten und Möbelfabrikanten eine intensive Auseinandersetzung mit der Gestaltung von komfortablen Kirchenmöbeln. Mit dem Ziel anspruchsvolles sowie komfortables Design für sakrale Räume zu entwickeln, welche sich ihrer sensiblen Historie bewusst sind. Hintergrund der Auslobung ist die vielerorts schon begonnene Umnutzung von Sakralen Räumen nicht nur im urbanen, sondern auch im ruralen Raum. Immer mehr Gemeinden erkennen die Chance, durch Ersetzen der existierenden Kirchenbänke („pews“), ihre Kirchen flexibler und multifunktionaler zu gestalten. Aufgrund einer Vielzahl misslungener Herangehensweisen im Umgang mit moderner Kirchenmöblierung in England, sollte der Wettbewerb ein Bewusstsein, für ein gefühlvolles Ersetzen der pews innerhalb der englischen Kirche schaffen.














Die Arbeit untersucht wieviel Gemütlichkeit in dem am weitesten verbreiteten Möbelstück der Welt steckt und stellt die Frage wieviel Stühle wir noch brauchen?
Als Inbegriff der Massenware wurde der Monobloc millionenfach produziert, kopiert und möbliert seit dem als Alltagsobjekt weltweit öffentliche und private Orte wie Terrassen, Plätze, Balkone und Wohnzimmer. Inspiriert wurde er durch Vorgängermodelle wie, Joe Colombos “Chair Universal 4867“, Verner Pantons „Panton Chair“ oder auch den Entwurf „Selene“ des italienischen Designers Vico Magistretti. 1973 von Henry Massonnet einem fränzösicher Ingenieur, mit dem Titel „Fauteuil 300“ als einteiliges Spritzgussmöbel auf den Markt gebracht wird er schnell der erfolgreichste Stuhl in der Geschichte der Menschheit und ist vielleicht das einzige universelle Designobjekt in unser globalisierten Welt.
Fotos: Sebastian Klawiter












Aktives Mitglied von 2009 – 2013 (Vorstandschaft 2009 -2013), jetzt Fördermitglied
WIR sind wirgestalten e.V., eine Gemeinschaft von Studenten der gestalterischen Studiengänge Produktdesign, Innenarchitektur und Architektur. Als Ziel haben WIR es uns gesetzt uns, unsere Mitstudenten und die Kultur Coburgs kreativ zu bereichern und zu prägen.
Dazu gestalten WIR Workshops, Vorträge und Ausstellungen in unserem Vereinsheim. Fernab des Hochschulalltags fördern WIR so das studentische Miteinander für den Austausch über Semester und Studiengänge hinweg. So schaffen WIR ein stetig wachsendes Netzwerk, das die Kreativität belebt und auch noch nach dem Studium bestehen bleibt. Durch Auftragsprojekte und kulturschaffende Aktionen geben wir Studenten die Möglichkeit Erfahrungen über die Hochschule hinaus zu sammeln.
Die letzten Jahre haben gezeigt, dass das Prinzip WIRGESTALTEN funktioniert. Trotzdem sind WIR im ständigen Wandel, denn mit neuen Mitgliedern kommen auch immer neue Ideen.
WIR wollen etwas bewegen und das kulturelle Angebot der Stadt bereichern und mitgestalten.
mehr auf www.instagram.com/wirgestalten/


















Bei Bandwurmwörtern schützen die Browser das Layout durch eine automatische Trennung bei Bindestrichen. Aber ohne besondere Vorsorge gibt es keine automatische Silbentrennung auf Webseiten. Wenn die Zeilen lang genug sind, kommt der Flattersatz auch recht gut mit moderaten Wortlängen zurecht.
Aber wenn die Spalten schmal sind und auf den kleinen Monitoren mobiler Geräte hilft die Trennung bei Leerzeichen, Bindestrichen und Satzzeichen nicht unbedingt. Typisches Beispiel ist eine URL, die in den Text kopiert wird:









